Bénéficiez des services de nos partenaires locaux soigneusement sélectionnés
pour vous accompagner dans votre parcours d'achat immobilier

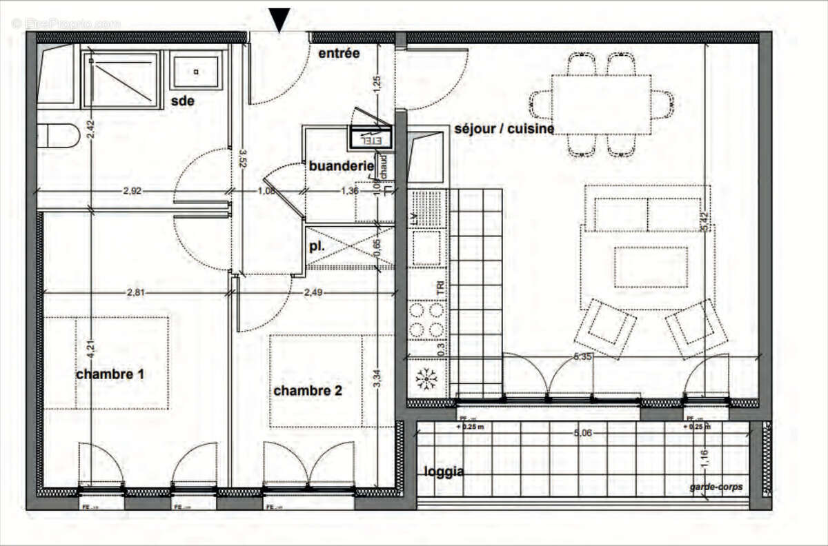
Appartement lumineux avec terrasse Parking en sous-sol - Notaire offert

— Merignac 33700 —
293 000 €
63 m²
3 pièces
parkingbalcon/terrasse

Nos partenaires locaux
Appartement à proximité du Parc Mirepin, découvrez ce bel appartement fonctionnel et lumineux.
Frais de notaore offert!

Les atouts du bien :
·Balcon de 6m2 pour profiter des beaux jours
·2 Chambres avec placard 
- Buanderie
·Entrée avec grand placard pour un rangement optimal
·Salle de bain moderne avec douche à l’italienne, WC et emplacement pour machine à laver
·Place de parking en sous-sol sécurisée

Frais de notaire Offert!
Appartement bien agencé, agréable à vivre et baigné de lumière.
Pour plus d’informations ou organiser une visite, contactez-moi ! false
Voir plus

Bien en copropriété.
Barème des honoraires
Appartement à MERIGNAC
Appartement à MERIGNAC
Appartement à MERIGNAC
Appartement à MERIGNAC
Appartement à MERIGNAC
Appartement à MERIGNAC
Géorisques

Les informations sur les risques auxquels ce bien est exposé sont disponibles sur le site Géorisques : www.georisques.gouv.fr

Ce site est protégé par hCaptcha Politique de confidentialité et Conditions d’utilisation s’appliquent.

En poursuivant votre navigation sans modifier vos paramètres, vous acceptez l'utilisation de cookies susceptibles de réaliser des statistiques de visite. Cliquez ici pour plus d'informations