Bénéficiez des services de nos partenaires locaux soigneusement sélectionnés
pour vous accompagner dans votre parcours d'achat immobilier

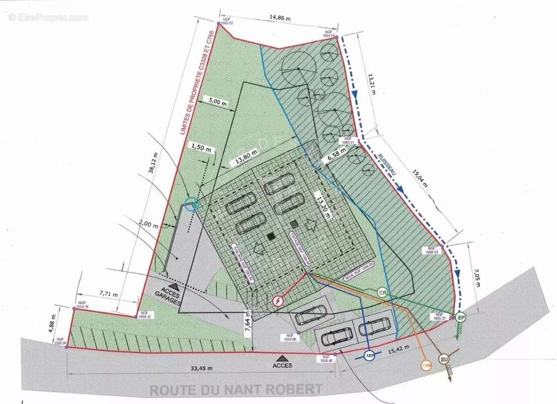
Ferme de 1797, avec Permis purgé pour 410 m2 au sol

— Le Grand-Bornand 74450 —
990 000 €
5 pièces
jardin

Nos partenaires locaux
Dans l’un des secteurs les plus prisés du Grand-Bornand, cette ferme datant de 1797 s’inscrit dans un environnement au calme, bénéficiant d’un ensoleillement optimal et d’une vue spectaculaire sur la chaîne des Aravis et le village.

Implantée sur un terrain de 1133 m², la propriété développe actuellement 357 m² et fait l’objet d’un permis de construire purgé de tout recours pour une réhabilitation complète, respectueuse de son identité architecturale.

Le permis prévoit :
-Le démontage total de l’existant
-Le réemploi des bois de structure et des pierres de pays
-Une reconstruction déplacée plus haut sur la parcelle, renforçant la vue et la valeur patrimoniale
-Un volume supérieur à 600 m³
-Une nouvelle emprise au sol de 174 m²

Deux configurations sont possibles : Soit 2 logements indépendants :
-151 m² habitables + 39 m² de garage
-173 m² habitables + 47 m² de garage
Ou une ferme familiale d’exception offrant de vastes volumes, idéale en résidence principale ou secondaire haut de gamme.
7 stationnements prévus (4 couverts, 3 extérieurs).

Une situation privilégiée avec navette à 120 m, centre du village à 2 km, à 30 minutes du lac (Menthon-Saint-Bernard), à 40 minutes d’Annecy et 60 minutes de l’Aéroport international de Genève.

Pour organiser une visite ou pour plus d'informations, contactez Valérie SERGENT – Agent commercial EI - [Coordonnées masquées] ou par email à [Coordonnées masquées].
Voir plus

Référence: F2292VS
Barème des honoraires
DPE
A
B
C
D
E
F
G
GES
A
B
C
D
E
F
G
Maison à LE GRAND-BORNAND
Maison à LE GRAND-BORNAND
Maison à LE GRAND-BORNAND
Maison à LE GRAND-BORNAND
Maison à LE GRAND-BORNAND
Maison à LE GRAND-BORNAND
Maison à LE GRAND-BORNAND
Géorisques

Les informations sur les risques auxquels ce bien est exposé sont disponibles sur le site Géorisques : www.georisques.gouv.fr

Ce site est protégé par hCaptcha Politique de confidentialité et Conditions d’utilisation s’appliquent.

En poursuivant votre navigation sans modifier vos paramètres, vous acceptez l'utilisation de cookies susceptibles de réaliser des statistiques de visite. Cliquez ici pour plus d'informations