Bénéficiez des services de nos partenaires locaux soigneusement sélectionnés
pour vous accompagner dans votre parcours d'achat immobilier

Voir tous les partenaires locaux

Bureaux - immeuble - local d'a a vendre

— Rennes 35000 —
1 100 000 €
2 170 m²

Nos partenaires locaux
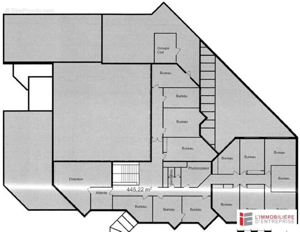
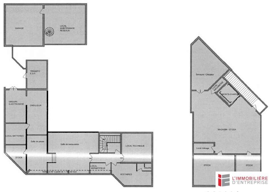
L'immobilière d'entreprise vous propose à la vente ce bien situé à Cesson-Sévigné, d'une surface de 2 170 m². Implanté en coeur de la Z.I Sud-Est, cet ensemble immobilier bénéficie d'un environnement tertiaire et d'activités particulièrement dynamique, au sein d'un secteur reconnu de la métropole rennaise. Édifié sur une parcelle foncière de 4 125 m², le bâtiment développe :
- 577 m² de surface de plancher en sous-sol,
- 1 148 m² en rez-de-chaussée (surfaces utiles brutes : 930 m²)
- 445 m² au R+1 (surfaces utiles brutes : 395 m²)l'immeuble est en très bon état, offre des espaces fonctionnels et bien répartis; et propose des bureaux cloisonnés et lumineux ainsi que des espaces de circulation confortables, adaptés à une activité tertiaire, un centre de formation, un siège d'entreprise ou toute structure nécessitant des capacités de stockage complémentaires en sous-sol.Le site dispose de 37 places de stationnement, et un accès direct à un arrêt de bus au niveau de l'entrée du site, facilitant l'accès des collaborateurs et visiteurs.
- Localisation : Z.I Sud-Est, CESSON-SÉVIGNÉ
- Surface : 2 170 m²
- Disponibilité : Immédiate
DPE En cours
Voir plus

Référence: 35_0780_BL
Honoraires d'agence de 5% à la charge de l'acquéreur
Commerce à RENNES
Commerce à RENNES
Commerce à RENNES
Commerce à RENNES
Commerce à RENNES
Géorisques

Les informations sur les risques auxquels ce bien est exposé sont disponibles sur le site Géorisques : www.georisques.gouv.fr

Ce site est protégé par hCaptcha Politique de confidentialité et Conditions d’utilisation s’appliquent.

En poursuivant votre navigation sans modifier vos paramètres, vous acceptez l'utilisation de cookies susceptibles de réaliser des statistiques de visite. Cliquez ici pour plus d'informations