Bénéficiez des services de nos partenaires locaux soigneusement sélectionnés
pour vous accompagner dans votre parcours d'achat immobilier

CADENBRONN / NOUSSEVILLER-SAINT-NABOR - Maison à diviser en 3 appartements + grand loft à créer

— Nousseviller-Saint-Nabor 57990 —
119 000 €
145 m² / 275 m²
7 pièces
parkingjardin

Nos partenaires locaux
CADENBRONN / NOUSSEVILLER-SAINT-NABOR - Maison à diviser en 3 appartements + grand loft à créer
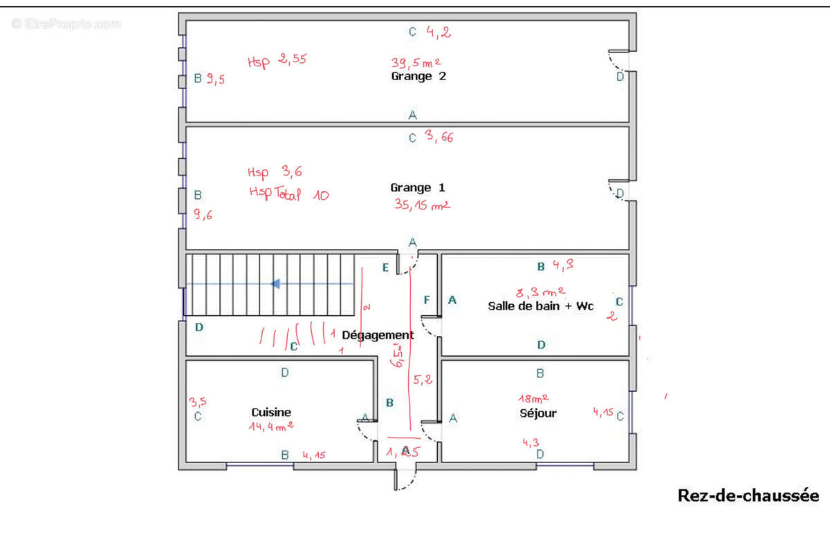
La maison se compose au RDC d'une cuisine, salon et salle d'eau. Un accès au granges/garages sur le même niveau qu'il est possible de transformer en loft attypique OU garages.
Au 1er étage : 3 pièces.
Au dernier : un studio à créer.
Places de parking extérieures et dans la rue.
PRIX : 129 000€
Honoraires à la charge du vendeur.
DPE E 251 kWh/m2.an Emissions GES E 67 kg CO₂/m2.an Date réalisation des diagnostics :01/11/2022 Estimation frais annuels d'énergie : 2770 - 3780€ abonnements compris Année de référence pour le calcul des coûts : 2021 Les informations sur les risques auxquels ce bien est exposé sont disponibles sur le site Géorisques : www.georisques.gouv.fr
Voir plus

Référence: 288
Honoraires à la charge du vendeur.
Barème des honoraires
DPE
A
B
C
D
E
F
G
GES
A
B
C
D
E
F
G
Appartement à NOUSSEVILLER-SAINT-NABOR
Appartement à NOUSSEVILLER-SAINT-NABOR
Appartement à NOUSSEVILLER-SAINT-NABOR
Appartement à NOUSSEVILLER-SAINT-NABOR
Appartement à NOUSSEVILLER-SAINT-NABOR
Appartement à NOUSSEVILLER-SAINT-NABOR
Appartement à NOUSSEVILLER-SAINT-NABOR
Appartement à NOUSSEVILLER-SAINT-NABOR
Appartement à NOUSSEVILLER-SAINT-NABOR
Appartement à NOUSSEVILLER-SAINT-NABOR
Appartement à NOUSSEVILLER-SAINT-NABOR
Appartement à NOUSSEVILLER-SAINT-NABOR
Appartement à NOUSSEVILLER-SAINT-NABOR
Appartement à NOUSSEVILLER-SAINT-NABOR
Appartement à NOUSSEVILLER-SAINT-NABOR
Appartement à NOUSSEVILLER-SAINT-NABOR
Appartement à NOUSSEVILLER-SAINT-NABOR
Appartement à NOUSSEVILLER-SAINT-NABOR
Appartement à NOUSSEVILLER-SAINT-NABOR
Appartement à NOUSSEVILLER-SAINT-NABOR
Appartement à NOUSSEVILLER-SAINT-NABOR
Appartement à NOUSSEVILLER-SAINT-NABOR
Appartement à NOUSSEVILLER-SAINT-NABOR
Appartement à NOUSSEVILLER-SAINT-NABOR
Appartement à NOUSSEVILLER-SAINT-NABOR
Appartement à NOUSSEVILLER-SAINT-NABOR
Appartement à NOUSSEVILLER-SAINT-NABOR
Géorisques

Les informations sur les risques auxquels ce bien est exposé sont disponibles sur le site Géorisques : www.georisques.gouv.fr

Ce site est protégé par hCaptcha Politique de confidentialité et Conditions d’utilisation s’appliquent.