Bénéficiez des services de nos partenaires locaux soigneusement sélectionnés
pour vous accompagner dans votre parcours d'achat immobilier

Appartement 18m² à vendre 79000€ - Lyon 69007

— Lyon-7e 69007 —
79 000 €
18 m²
1 pièce

Nos partenaires locaux
Conseil en vente : Laetitia Harhour à6 2I 93 I6 81 - laetitia. harhour @ foncia .com - Annonce avec les Aspects Financiers : https://lmnp.foncia.com/bien-76549 - lmnp .foncia. com

Loyer Annuel : 4 286 € HT - Rentabilité brute : 5,43%

Investissement locatif meublé – LMNP - Résidence étudiante Bakara Lyon – Cardinal Campus - Revenus Locatifs - Fiscalité avantageuse - Bien exclusivement destiné à l'investissement locatif - Aucune occupation personnelle ni location en direct possible

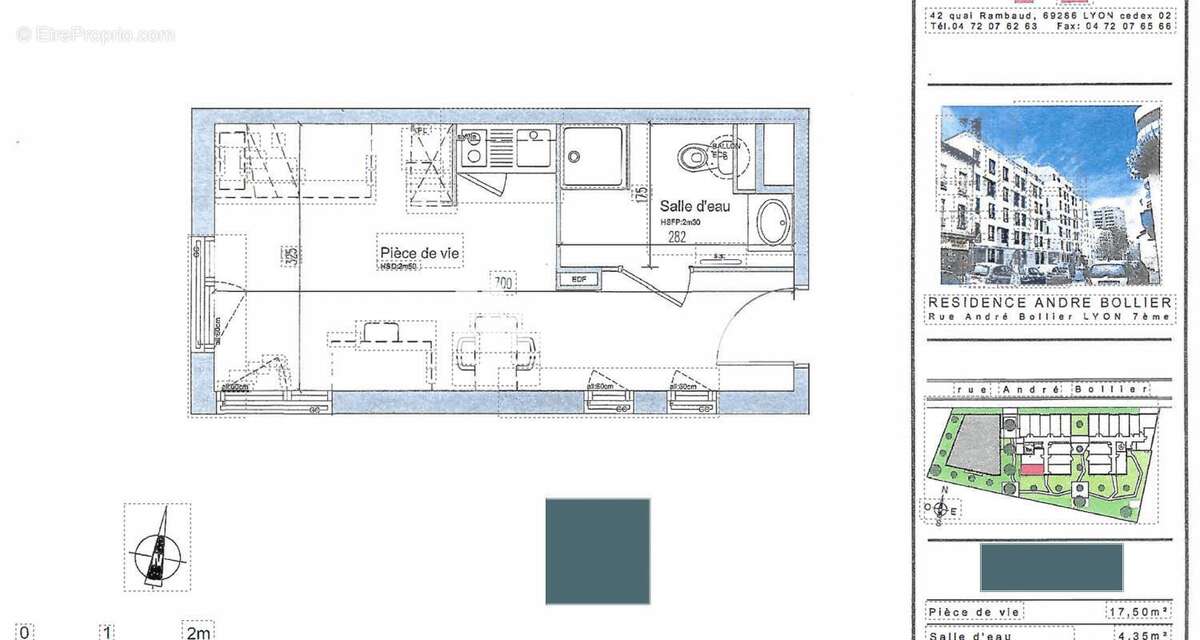
Résidence étudiante Bakara Lyon
Adresse : 30 Rue André Bollier, 69007 Lyon, France
Résidence située dans un quartier dynamique et accessible de Lyon 7ᵉ, proche des commodités et parfaitement adaptée aux besoins des étudiants.

LOGEMENT
Type : T1 meublé
Étage : 1er étage /6
Exposition : Est
Composition : pièce de vie/chambre avec kitchenette, salle d'eau avec wc

Photos : Les photos correspondent au bien
Lien de la visite virtuelle : https://my.matterport.com/show/?m=tnt2iU1u4fE

REVENUS LOCATIFS
Loyer actuel : 4 286 € Hors Taxes et Hors Charges / an
Loyer versé de façon mensuelle à terme échu
Indexation triennale : ILC, indexation plafonnée à 1,5% / an
Revenus perçus même en cas de non-occupation
Bail commercial en cours avec le gestionnaire CARDINAL CAMPUS

RESIDENCE
Quartier dynamique et étudiant, idéalement situé dans le 7ᵉ arrondissement de Lyon, à proximité des transports en commun, commerces et universités. Environnement agréable, sûr et bien desservi pour les étudiants.

Accès transports en commun
Métro B : Debourg
Tram T1 : ENS de Lyon
Bus C22 : ENS Lyon
Bus 34 : Place Docteurs Mérieux

LOCATAIRE COMMERCIE / GESTIONNAIRE : CARDINAL CAMPUS
Gestion complète assurée, aucune intervention du propriétaire
Cardinal Campus est un acteur reconnu dans la gestion de résidences étudiantes, présent dans toute la France. Il assure une gestion professionnelle, stable et rigoureuse, avec une attention portée à la qualité des services proposés aux locataires comme aux propriétaires.

FISCALITE ET AVANTAGES DU LMNP

Le statut Loueur Meublé Non Professionnel (LMNP) permet :
Des revenus peu ou pas fiscalisés grâce à l'amortissement du bien et aux déductions
Une fiscalité optimisée via le régime réel (BIC)
- Rentabilité attractive avec revenus réguliers
- Exploitation fiable et éprouvée
- Aucun souci de gestion ni risque locatif
- Revenus stables et sécurisés
- Placement idéal pour diversifier son patrimoine, préparer sa retraite ou générer des revenus passifs
- Gestion intégrale assurée par le gestionnaire
- Bail commercial
- Charges et taxe foncière connues

Bien exclusivement destiné à l'investissement locatif : Pas d'occupation personnelle possible, Pas de location directe autorisée
La location pourra être déléguée à Foncia Développement et Location.
Voir plus

Référence: 00654389
Honoraires à la charge du vendeur.
Barème des honoraires
DPE
A
B
C
D
E
F
G
GES
A
B
C
D
E
F
G
Appartement à LYON-7E
Appartement à LYON-7E
Appartement à LYON-7E
Appartement à LYON-7E
Appartement à LYON-7E
Appartement à LYON-7E
Appartement à LYON-7E
Appartement à LYON-7E
Appartement à LYON-7E
Appartement à LYON-7E
Appartement à LYON-7E
Appartement à LYON-7E
Appartement à LYON-7E
Appartement à LYON-7E
Géorisques

Les informations sur les risques auxquels ce bien est exposé sont disponibles sur le site Géorisques : www.georisques.gouv.fr

Ce site est protégé par hCaptcha Politique de confidentialité et Conditions d’utilisation s’appliquent.

En poursuivant votre navigation sans modifier vos paramètres, vous acceptez l'utilisation de cookies susceptibles de réaliser des statistiques de visite. Cliquez ici pour plus d'informations