Bénéficiez des services de nos partenaires locaux soigneusement sélectionnés
pour vous accompagner dans votre parcours d'achat immobilier

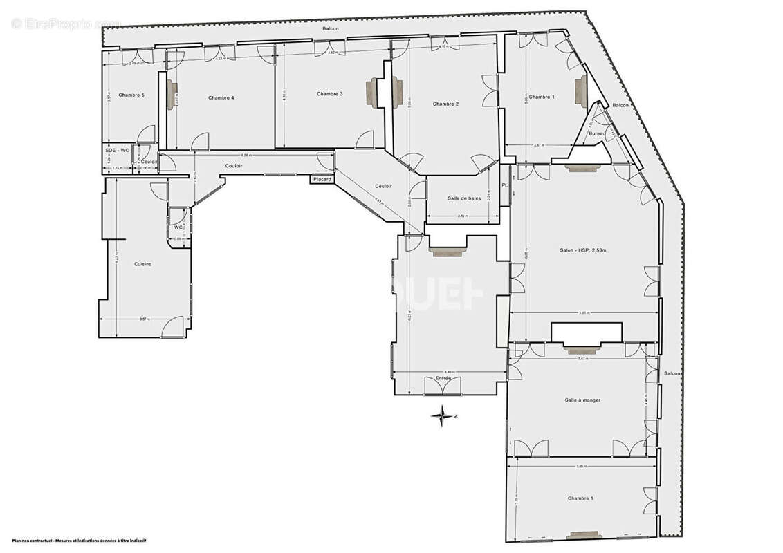
Appartement a renover - 8 pieces (231 m²) + balcon (23 m²) - paris 9 cadet

— Paris-9e 75009 —
1 850 000 €
231 m²
8 pièces

Nos partenaires locaux
Guy Hoquet Saint-Georges vous présente un bel appartement à rénover de 8 pièces idéalement situé à quelques pas du square Montholon. D'une surface de 231 m² (227.20 m² Carrez) , il possède également un balcon filant de 23 m². Situé au 4ème étage (sans ascenseur) dans une belle copropriété datant de 1860, cet appartement en angle bénéficie de très beaux volumes, du charme de l'ancien et d'une très belle lumière avec sa triple exposition.. Il comprend de vastes pièces de réception salon et salle à manger (plus de 60 m²), 6 chambres, une cuisine, une salle de bains, une salle d'eau avec WC et un second WC indépendant. Une cave complète le bien. Ce bien rare offre un potentiel exceptionnel ! Copropriété de 44 lots - dont 21 lots habitation. Charges annuelles : 7107 euros.
Voir plus

Référence: 2629
Bien en copropriété. Nombre de lots : 44. Charges de copropriété : 7107 €.
Honoraires à la charge du vendeur.
DPE
A
B
C
D
E
F
G
GES
A
B
C
D
E
F
G
Appartement à PARIS-9E
Appartement à PARIS-9E
Appartement à PARIS-9E
Appartement à PARIS-9E
Appartement à PARIS-9E
Appartement à PARIS-9E
Appartement à PARIS-9E
Appartement à PARIS-9E
Appartement à PARIS-9E
Appartement à PARIS-9E
Appartement à PARIS-9E
Appartement à PARIS-9E
Appartement à PARIS-9E
Appartement à PARIS-9E
Géorisques

Les informations sur les risques auxquels ce bien est exposé sont disponibles sur le site Géorisques : www.georisques.gouv.fr

Ce site est protégé par hCaptcha Politique de confidentialité et Conditions d’utilisation s’appliquent.

En poursuivant votre navigation sans modifier vos paramètres, vous acceptez l'utilisation de cookies susceptibles de réaliser des statistiques de visite. Cliquez ici pour plus d'informations