Bénéficiez des services de nos partenaires locaux soigneusement sélectionnés
pour vous accompagner dans votre parcours d'achat immobilier

Appartement 3 p 48 m2 Nice Saint Roch terrasse 16 m2

— Nice 06300 —
220 000 €
48 m²
3 pièces
parkingbalcon/terrasse

Nos partenaires locaux
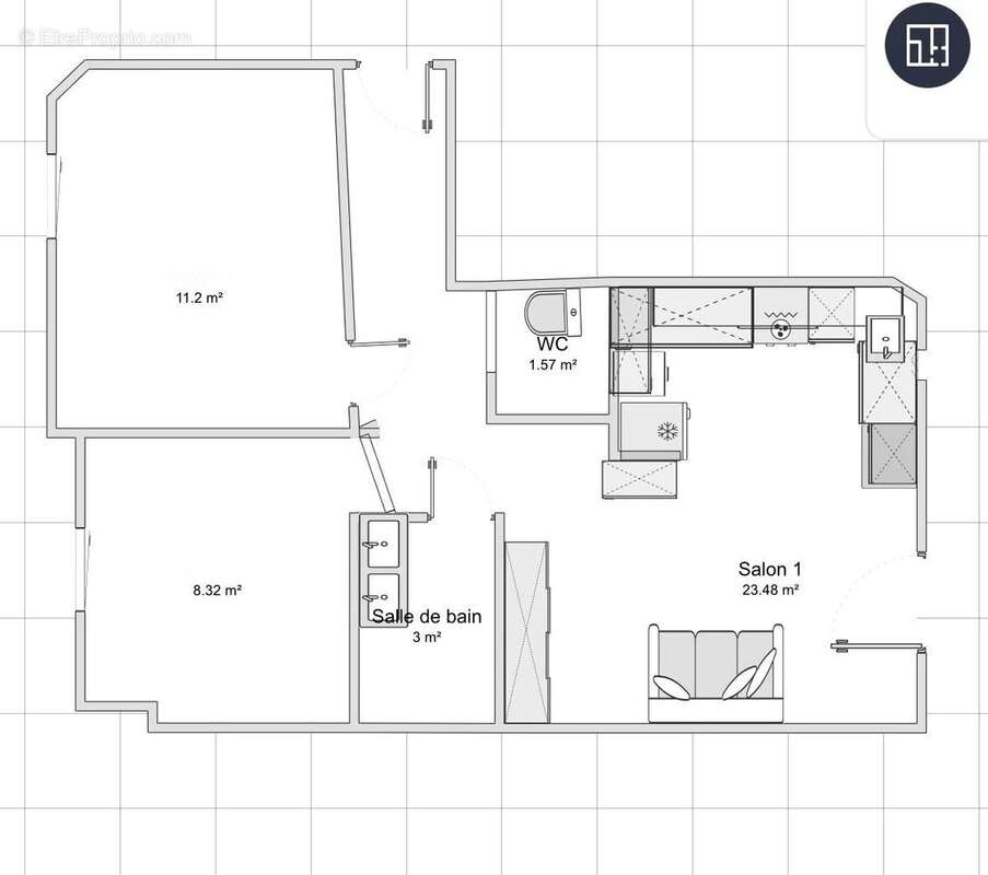
Situé à Nice Saint Roch Av Giacobi, au premier étage d’un immeuble en pierre de taille sans ascenseur, cet agréable appartement trois pièces de 48 m² offre un cadre de vie à la fois confortable et pratique, idéalement situé, à proximité immédiate de toutes les commodités, à 100 mètres d’un arrêt de tramway, proche des universités et de la Gare de Nice-Riquier.

L’appartement se compose de deux chambres donnant sur rue, d’un séjour avec cuisine ouverte meublée d’environ 18 m², ainsi que d'une salle de douche moderne et de toilettes séparées avec emplacement pour une machine à laver. Traversant nord-sud, il profite d’une belle luminosité.

Côté sud, une spacieuse terrasse de 16 m² constitue un véritable atout, idéale pour savourer des moments de détente en extérieur.

Rénové il y a quelques années, il bénéficie de prestations appréciables telles qu’une climatisation gainable centralisée, des portes-fenêtres récemment remplacées,
Un léger rafraîchissement décoratif permettra de révéler tout le potentiel et le charme de cet appartement.
(projection photo meuble avec IA).


Les informations sur les risques auxquels ce bien est exposé sont disponibles sur le site Géorisques : http://georisques.gouv.fr
Voir plus

Référence: 86726002
DPE
A
B
C
D
E
F
G
GES
A
B
C
D
E
F
G
Appartement à NICE
Appartement à NICE
Appartement à NICE
Appartement à NICE
Appartement à NICE
Appartement à NICE
Appartement à NICE
Appartement à NICE
Appartement à NICE
Appartement à NICE
Géorisques

Les informations sur les risques auxquels ce bien est exposé sont disponibles sur le site Géorisques : www.georisques.gouv.fr

Ce site est protégé par hCaptcha Politique de confidentialité et Conditions d’utilisation s’appliquent.

En poursuivant votre navigation sans modifier vos paramètres, vous acceptez l'utilisation de cookies susceptibles de réaliser des statistiques de visite. Cliquez ici pour plus d'informations