Local d'activité Glaire 5 pièces 680 m2

— Glaire 08200 —
420 000 €
680 m² / 3 000 m²
5 pièces
jardin

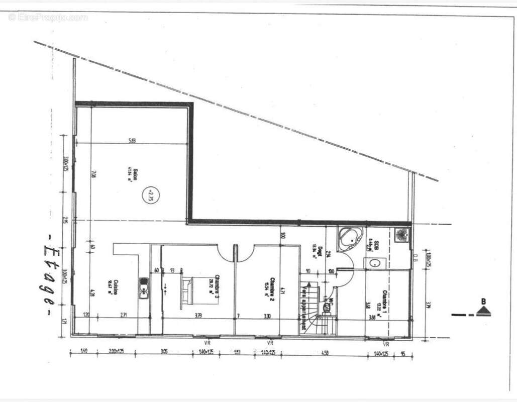
SEDAN GLAIRE ENSEMBLE IMMOBILIER PROFESSIONNEL AVEC HABITATION SUR TERRAIN DE 3 000 m². Construction récente en excellent état (2010). -Idéalement conçu pour artisan, PME ou activité nécessitant espace de stockage et bureaux avec logement sur place, cet ensemble immobilier complet offre de belles prestations et un fort potentiel. -Terrain de 3 000 m² Parcelle spacieuse permettant circulation, stationnement, stockage extérieur ou développement complémentaire. Une partie du terrain est aménagée avec terrasse et espaces extérieurs agréables. -Atelier de 400 m² Grand espace fonctionnel équipé de 2 larges portes sectionnelles, idéal pour véhicules utilitaires, stockage ou activité de production. Vestiaires. -Bureaux de 140 m² Espaces administratifs lumineux avec salle de réunions, adaptés pour accueillir votre équipe et recevoir vos clients dans de bonnes conditions. -Logement T5 de 140 m² Habitation confortable comprenant 3 chambres, idéale pour un dirigeant souhaitant vivre sur place ou pour un logement de fonction. -Ensemble rare alliant outil de travail et cadre de vie sur un même site. -Accès facile et configuration pratique pour activité professionnelle. Pour plus de renseignements ou organiser une visite, merci de nous contacter.
Voir plus

Référence: 1535
Honoraires à la charge du vendeur.
Barème des honoraires
DPE
A
B
C
D
E
F
G
GES
A
B
C
D
E
F
G
Commerce à GLAIRE
Commerce à GLAIRE
Commerce à GLAIRE
Commerce à GLAIRE
Commerce à GLAIRE
Commerce à GLAIRE
Commerce à GLAIRE
Commerce à GLAIRE
Commerce à GLAIRE
Commerce à GLAIRE
Commerce à GLAIRE
Commerce à GLAIRE
Commerce à GLAIRE
Commerce à GLAIRE
Géorisques

Les informations sur les risques auxquels ce bien est exposé sont disponibles sur le site Géorisques : www.georisques.gouv.fr

Ce site est protégé par hCaptcha Politique de confidentialité et Conditions d’utilisation s’appliquent.

En poursuivant votre navigation sans modifier vos paramètres, vous acceptez l'utilisation de cookies susceptibles de réaliser des statistiques de visite. Cliquez ici pour plus d'informations