Bénéficiez des services de nos partenaires locaux soigneusement sélectionnés
pour vous accompagner dans votre parcours d'achat immobilier

Exclusivité brest centre-ville immeuble complet r+4 347,09 m² habitables

— Brest 29200 —
890 000 €
347 m² / 112 m²
14 pièces
balcon/terrassejardin

Nos partenaires locaux
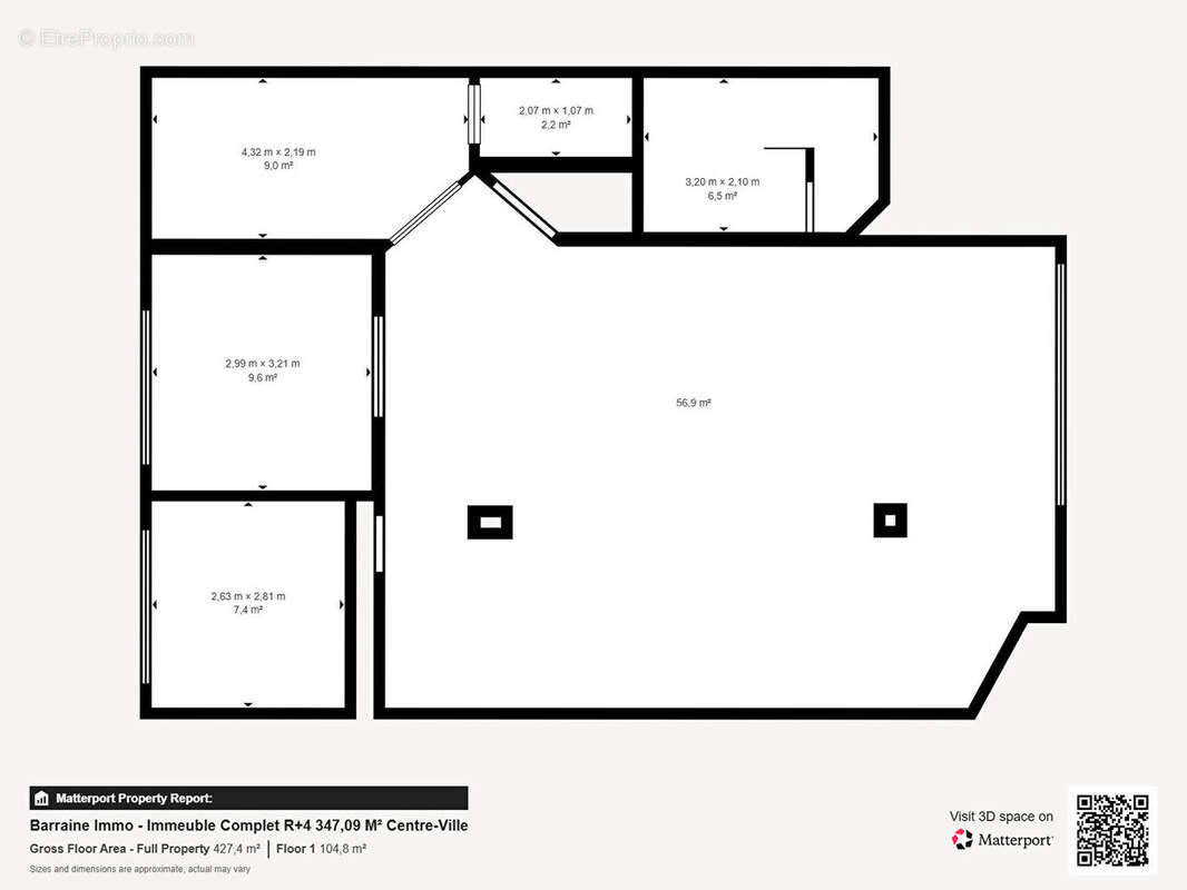
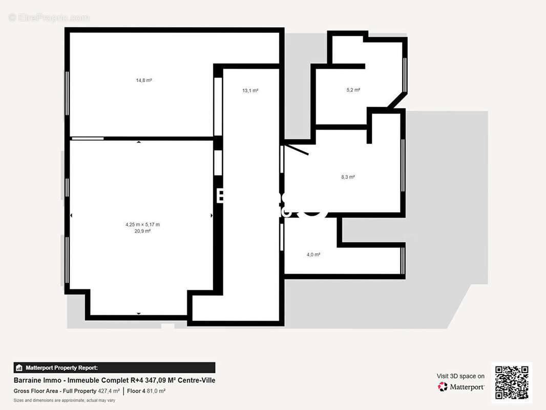
EXCLUSIVITÉ - BREST - CENTRE-VILLE. Réf : SI00481-PDM Situé au coeur du centre-ville de Brest (29200), venez découvrir cet immeuble en monopropriété développant une surface totale de 347,09 m² (Loi Carrez) et édifié sur une parcelle de 112 m². L'immeuble des années 1950 s'élève sur quatre niveaux et dispose d'un sous-sol de 69,63 m². Il ne fait l'objet d'aucun bail en cours. L'ensemble avec une cage d'escalier indépendante et desservant l'ensemble des étages se compose : Sous-sol de 69,63 m² comprenant une salle, une chaufferie et une cave. Rez-de-chaussée : Usage de bureaux / local commercial de 83,43 m². Premier étage (communiquant avec le rez-de-chaussée) : Appartement T2 65,47 m² composé d'une entrée, pièce de vie/bureau de 40,39 m², chambre avec salle d'eau privative 19,15 m² et WC indépendants. Au second, troisième et quatrième niveau vous trouverez un appartement triplex de 198,19 m² habitables. Côté technique, les menuiseries sont en PVC double vitrage. La couverture en zinc a été contrôlée et a fait l'objet de travaux en 2025. Le chauffage est collectif au fioul et la production d'eau chaude réalisée par un ballon électrique. Le bâtiment est classé en étiquette énergétique F. Les dépenses annuelles d'énergie pour un usage standard sont estimées entre 6 360 euros et 8 610 euros, indexées sur les années 2021, 2022 et 2023, abonnement compris. Situé dans le centre-ville Brestois, cet immeuble est idéalement situé. Vous trouverez à proximité immédiate de nombreux commerces ainsi que le tramway et bus. Cet immeuble en monopropriété conviendra à un investisseur, un professionnel ou un acquéreur patrimonial recherchant un actif immobilier en centre-ville, offrant une mixité d'usages (bureaux, local et logements), avec une structure existante et des volumes identifiés. Ce bien est une exclusivité de l'agence Barraine IMMO Brest-Siam. (4.71 % honoraires TTC à la charge de l'acquéreur.)
Voir plus

Honoraires d'agence de 4.71% à la charge de l'acquéreur
Barème des honoraires
DPE
A
B
C
D
E
F
G
GES
A
B
C
D
E
F
G
Appartement à BREST
Appartement à BREST
Appartement à BREST
Appartement à BREST
Appartement à BREST
Appartement à BREST
Appartement à BREST
Appartement à BREST
Appartement à BREST
Appartement à BREST
Appartement à BREST
Appartement à BREST
Appartement à BREST
Appartement à BREST
Appartement à BREST
Appartement à BREST
Appartement à BREST
Appartement à BREST
Appartement à BREST
Géorisques

Les informations sur les risques auxquels ce bien est exposé sont disponibles sur le site Géorisques : www.georisques.gouv.fr

Ce site est protégé par hCaptcha Politique de confidentialité et Conditions d’utilisation s’appliquent.

En poursuivant votre navigation sans modifier vos paramètres, vous acceptez l'utilisation de cookies susceptibles de réaliser des statistiques de visite. Cliquez ici pour plus d'informations