Bénéficiez des services de nos partenaires locaux soigneusement sélectionnés
pour vous accompagner dans votre parcours d'achat immobilier

Appartement 80 m² à Paris-12e

— Paris-12e 75012 —
805 000 €
80 m²
4 pièces
ascenseur

Nos partenaires locaux
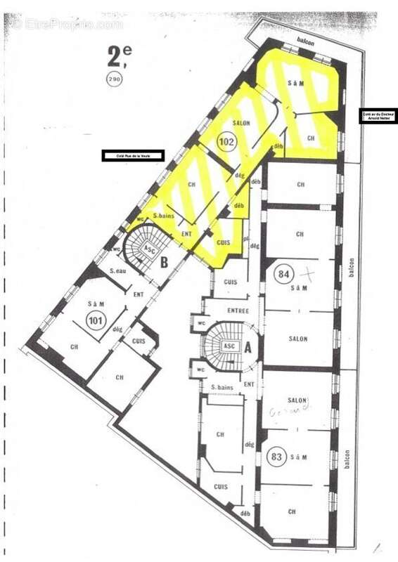
Appartement à rafraichir – 80,73 m² – Paris 12
Emplacement recherché, entre l'avenue de Saint-Mandé et le boulevard de Picpus
Situé au 2 étage, porte gauche, dans un bel immeuble haussmannien en pierre de taille avec ascenseur
Cet appartement de 80,73 m² à rafraichir offre un fort potentiel et bénéficie de vues dégagées.
Disposition :
Une entrée avec couloir de distribution
Une petite cuisine sur cour avec fenêtre
Une premiere chambre avec Salle de bains et WC séparée donnant sur une rue calme
Une seconde chambre côté avenue
Un double séjour lumineux (salon – salle à manger) avec portes-fenêtres ouvrant sur un balcon filant sur l'avenue
Chauffage et eau chaude assurés par une chaudière individuelle au gaz
Une cave complète ce bien

Informations locatives

Appartement occupé avec bail en cours.
Loyer mensuel hors charges de 1905,29€.
Congé pour vente délivré avec un bail expirant le 18 novembre 2025

Honoraires inclus de 4.2% TTC à la charge de l'acquéreur. Prix hors honoraires 772 553 €. Dans une copropriété de 92 lots. Quote-part moyenne du budget prévisionnel 2 177 €/an. Aucune procédure n'est en cours. Classe énergie E, Classe climat E Montant estimé des dépenses annuelles d'énergie pour un usage standard : entre 1805.00 € et 2443.00 € sur les années 2021, 2022 et 2023 (abonnements compris). Les informations sur les risques auxquels ce bien est exposé sont disponibles sur le site Géorisques : georisques.gouv.fr.
Voir plus

Référence: VA1904-JLTHOUARD
Bien en copropriété. Nombre de lots : 92. Charges de copropriété : 2177 €.
Honoraires d'agence de 4.2% à la charge de l'acquéreur
Barème des honoraires
DPE
A
B
C
D
E
F
G
GES
A
B
C
D
E
F
G
Appartement à PARIS-12E
Appartement à PARIS-12E
Appartement à PARIS-12E
Appartement à PARIS-12E
Appartement à PARIS-12E
Appartement à PARIS-12E
Géorisques

Les informations sur les risques auxquels ce bien est exposé sont disponibles sur le site Géorisques : www.georisques.gouv.fr

Ce site est protégé par hCaptcha Politique de confidentialité et Conditions d’utilisation s’appliquent.

En poursuivant votre navigation sans modifier vos paramètres, vous acceptez l'utilisation de cookies susceptibles de réaliser des statistiques de visite. Cliquez ici pour plus d'informations