Maison 199 m² à Saint-Palais

— Saint-Palais 64120 —
199 000 €
199 m² / 2 059 m²
5 pièces
jardin

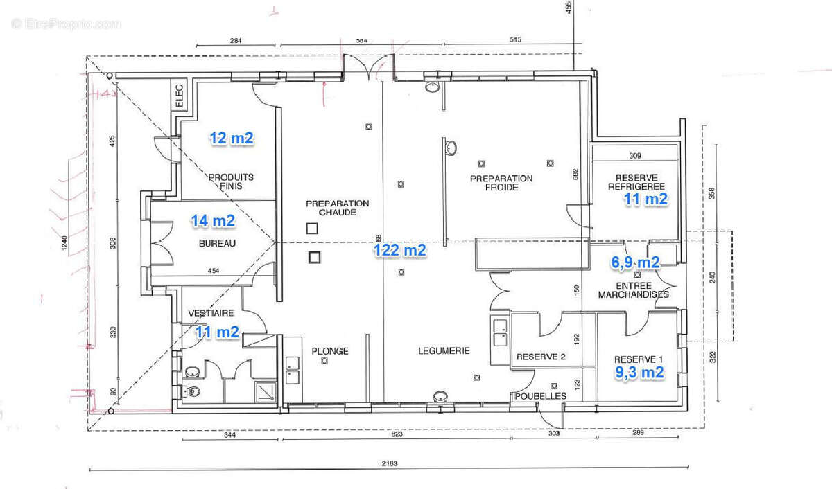
Entrepreneurs, artisans, professionnels en quête d'un espace à transformer à votre image : ce local de plain-pied de 195 m², implanté en zone d'activité à Aïcirits-Camou-Suhast, n'attend que votre projet. Sa parcelle de plus de 2 000 m² et son accès logistique généreux en font un outil de travail taillé pour des activités variées. Au coeur de la Z. A.C. de Targa, le terrain de 2 059 m² entièrement dégagé permet la circulation aisée de tous types de véhicules, y compris les poids lourds. L'entrée marchandise dessert directement un grand plateau ouvert de plus de 120 m², ancien laboratoire de production alimentaire, offrant un volume de travail généreux et adaptable à de nombreuses configurations. En prolongement, plusieurs réserves dont une chambre froide et un bureau indépendant structurent l'espace. Un vestiaire avec douche et des sanitaires complètent l'ensemble pour le confort quotidien de votre équipe. Les flux logistiques sont bien pensés : entrée marchandise, départ produits finis et local technique sont clairement séparés. Le réseau électrique professionnel a été rénové en 2020 avec des lignes industrielles dimensionnées pour des équipements gourmands en énergie. L'assainissement est raccordé au tout-à-l'égout, déclaré conforme en janvier 2026, et comprend un bac à graisses pour le pré-traitement des eaux industrielles. La zone commerciale active, à proximité d'enseignes établies et des grands axes, offre visibilité et accessibilité pour vos clients, fournisseurs et collaborateurs. Ce local se prête aussi bien à une activité artisanale de production (menuiserie, métallerie, fabrication) qu'à du négoce avec stockage, un atelier technique ou un projet lié au terroir local. Chaque repreneur pourra l'adapter aux normes spécifiques de son activité. 1.Informations LOI ALUR :
Honoraires charge vendeur. (gedeon_54542_32764293)
Voir plus

Référence: AG762-13492
Honoraires à la charge du vendeur.
Photo 1 - Maison à SAINT-PALAIS
Photo 1
Photo 2 - Maison à SAINT-PALAIS
Photo 2
Photo 3 - Maison à SAINT-PALAIS
Photo 3
Photo 4 - Maison à SAINT-PALAIS
Photo 4
Photo 5 - Maison à SAINT-PALAIS
Photo 5
Photo 6 - Maison à SAINT-PALAIS
Photo 6
Photo 7 - Maison à SAINT-PALAIS
Photo 7
Photo 8 - Maison à SAINT-PALAIS
Photo 8
Photo 9 - Maison à SAINT-PALAIS
Photo 9
Géorisques

Les informations sur les risques auxquels ce bien est exposé sont disponibles sur le site Géorisques : www.georisques.gouv.fr

Ce site est protégé par hCaptcha Politique de confidentialité et Conditions d’utilisation s’appliquent.

En poursuivant votre navigation sans modifier vos paramètres, vous acceptez l'utilisation de cookies susceptibles de réaliser des statistiques de visite. Cliquez ici pour plus d'informations