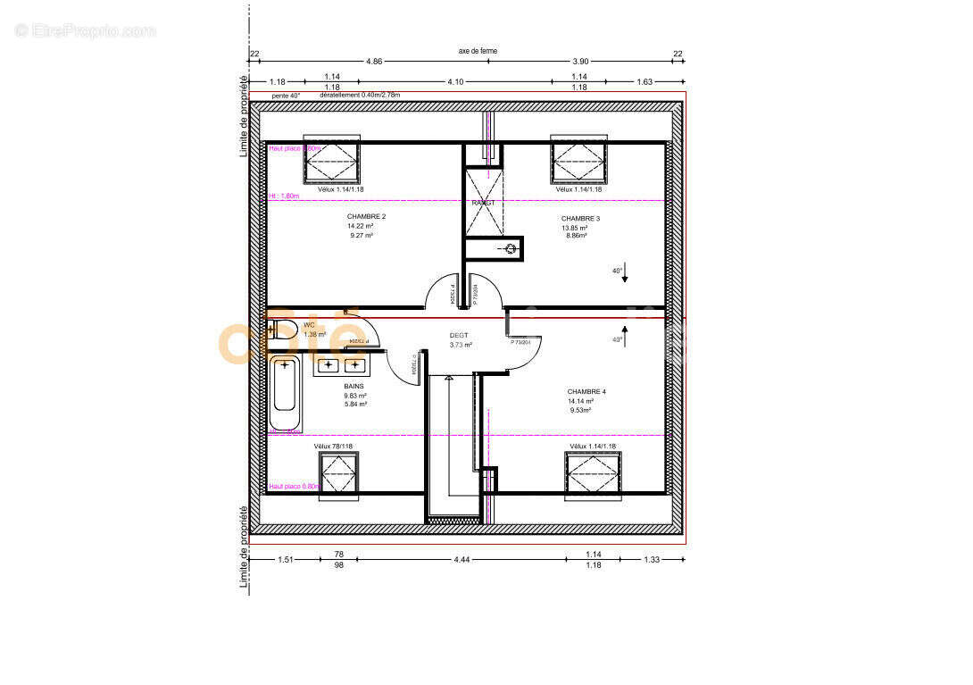
Maison plain pied - 5 pieces - 90m²

— Marcey-Les-Greves 50300 —
177 000 €
90 m² / 339 m²
5 pièces
jardin

En exclusivité!! Venez découvrir cette maison neuve de 90m² avec vie de plain-pied et accessible aux normes handicapées, sur une parcelle de 339m² située sur la commune de Marcey-les-Grèves dans un lotissement en impasse, à proximité immédiate des commerces, écoles et professions médicales, accès direct à l'A84, 5minutes du centre d'Avranches et 20mins du Mont saint-michel. Idéal pour première acquisition ou investissement locatif. Cette maison est proposée à la vente en clos couvert, le bâti extérieur est déjà réalisé (la maçonnerie, charpente, couverture, menuiseries extérieures, porte de garage sectionnelle motorisée). Reste à charge de l'acheteur l'aménagement intérieur, les installations techniques (Chauffage-Electricité-Plomberie-Ventilation) et aménagements extérieurs. Possibilité de terminer les travaux par artisans avec budget déjà estimé par devis et durée d'environ 7mois. Vous aurez le plaisir de concevoir votre intérieur à votre goût, vie de plain-pied ou vraie maison familiale, Exposée Sud-Ouest, à vous d'adapter suivant vos besoins! Les atouts majeurs, une conception sur mesure de l'intérieur, des frais de notaire réduits, budget et délai de travaux maitrisés, garantie décennale. Prenez possession des volumes avec projection par image de synthèse proposée dans cette annonce. (4.12 % honoraires TTC à la charge de l'acquéreur.)
Voir plus

Référence: 99
Honoraires d'agence de 4.12% à la charge de l'acquéreur
Barème des honoraires
DPE
A
B
C
D
E
F
G
GES
A
B
C
D
E
F
G
Maison à MARCEY-LES-GREVES
Maison à MARCEY-LES-GREVES
Maison à MARCEY-LES-GREVES
Maison à MARCEY-LES-GREVES
Maison à MARCEY-LES-GREVES
Maison à MARCEY-LES-GREVES
Maison à MARCEY-LES-GREVES
Maison à MARCEY-LES-GREVES
Géorisques

Les informations sur les risques auxquels ce bien est exposé sont disponibles sur le site Géorisques : www.georisques.gouv.fr

Ce site est protégé par hCaptcha Politique de confidentialité et Conditions d’utilisation s’appliquent.