Maison contemporaine de 2016 - 114m2 habitable - 4 chambres

— Ploufragan 22440 —
175 100 €
114 m² / 226 m²
5 pièces
parkingjardin

PLOUFRAGAN Quartier de La Ville-au-Beau - Maison contemporaine 2016 Idéale premier achat ou investissement locatif
Située dans un environnement agréable, cette maison contemporaine construite en 2016 développe 114 m2 habitables sur une parcelle d'environ 230 m2.
Un bien fonctionnel, moderne et économe, parfait pour démarrer un projet immobilier sereinement.
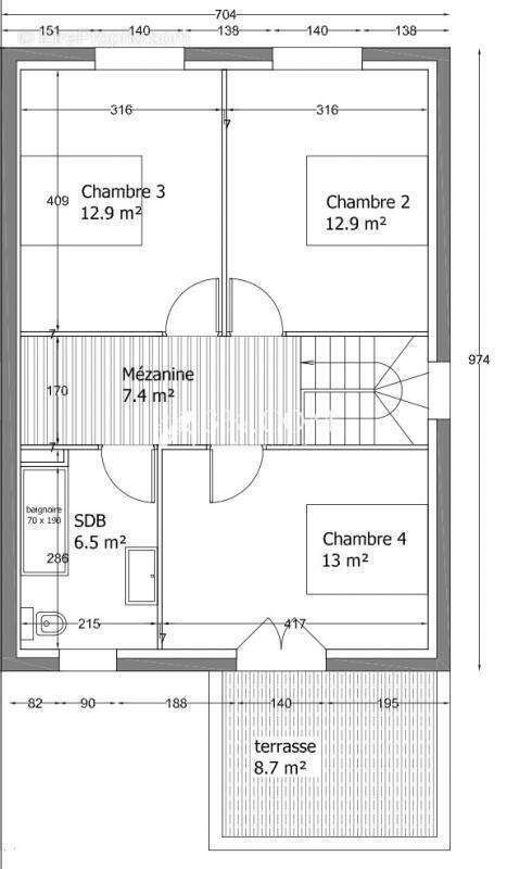
Vivable de plain-pied, elle propose au rez-de-chaussée une belle pièce de vie lumineuse de 34 m2, réunissant cuisine, salle à manger et salon, une chambre, une salle d'eau, une buanderie.
À l'étage, trois belles chambres, dont une avec terrasse, une salle de bain.
Un atout majeur : DPE classé A - Le chauffage et la production d'eau chaude sont assurés par une pompe à chaleur, garantissant confort thermique, faibles consommations énergétiques et charges maîtrisées -- un véritable avantage pour un investisseur comme pour un primo-accédant.
Maison raccordée au tout-à-l'égout.
Pourquoi ce bien est intéressant ?
- Idéal pour un premier achat : maison récente, peu énergivore, vivable immédiatement.
- Parfait pour un investissement locatif : 4 chambres, DPE A, construction récente = forte attractivité locative et rentabilité sécurisée
- Intérieur à personnaliser selon vos envies pour créer un lieu qui vous ressemble.
Vidéo de présentation disponible sur demande -
Honoraires 3% TTC de la valeur du bien, les honoraires sont à la charge de l'acquéreur. Pour découvrir cette maison, contactez votre conseillère locale, Stéphanie MIOSSEC EI au [Coordonnées masquées] - RSAC de St Brieuc no 877 562 496 - 3%.COM immobilier : réseau national à honoraires réduits à 3% TTC -
Les informations sur les risques auxquels ce bien est exposé sont disponibles sur le site Géorisques : www.georisques.gouv.fr - Annonce rédigée et publiée par un Agent Mandataire -
Voir plus

Référence: 271_V3550063281
Honoraires d'agence de 3% à la charge de l'acquéreur
DPE
A
B
C
D
E
F
G
GES
A
B
C
D
E
F
G
Maison à PLOUFRAGAN
Maison à PLOUFRAGAN
Maison à PLOUFRAGAN
Maison à PLOUFRAGAN
Maison à PLOUFRAGAN
Maison à PLOUFRAGAN
Maison à PLOUFRAGAN
Maison à PLOUFRAGAN
Maison à PLOUFRAGAN
Maison à PLOUFRAGAN
Maison à PLOUFRAGAN
Géorisques

Les informations sur les risques auxquels ce bien est exposé sont disponibles sur le site Géorisques : www.georisques.gouv.fr

Ce site est protégé par hCaptcha Politique de confidentialité et Conditions d’utilisation s’appliquent.

En poursuivant votre navigation sans modifier vos paramètres, vous acceptez l'utilisation de cookies susceptibles de réaliser des statistiques de visite. Cliquez ici pour plus d'informations