Bénéficiez des services de nos partenaires locaux soigneusement sélectionnés
pour vous accompagner dans votre parcours d'achat immobilier

Maison rénovée 3 pièces 53 m2 - terrasse - jardin - cave - stationnement

— La Colle-Sur-Loup 06480 —
359 000 €
53 m² / 35 m²
3 pièces
parkingbalcon/terrassejardin

Nos partenaires locaux
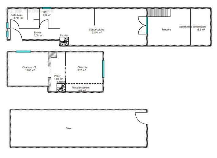
LA COLLE SUR LOUP - Proche Village. À proximité immédiate de toutes les commodités (écoles, collège, commerces...) au calme et idéalement exposée sud-ouest, très belle maison mitoyenne entièrement rénovée avec des matériaux de qualité de 3 pièces d'environ 53 m² sur deux niveaux.
Rez-de-jardin : entrée, salle d'eau, WC indépendant, cuisine US et séjour ouvrant sur terrasse et jardin de 35 m² sans vis-à-vis avec sa pergola bioclimatique. À l'étage, deux chambres dont une avec un dressing. Un plus non négligeable, une cave en sous-sol de 31 m² (HSP 1m70) aménagée et climatisée idéale pour une chambre d'appoint, un bureau, une salle de sport ou un coin buanderie ! Parking privatif devant la porte (voiture + 2 roues). Climatisation partout - Baie à galandage - Diagnostics vierges - Produit clés en main, vous n'aurez qu'à poser vos valises.
EXCLUSIVITÉ ORPI. Les informations sur les risques auxquels ce bien est exposé sont disponibles sur le site Géorisques : www.georisques.gouv.fr.
Référence agence : 5792
Voir plus

Référence: CTI4-B0A-HCU
Bien en copropriété. Nombre de lots : 82. Charges de copropriété : 38 €.
Honoraires à la charge du vendeur.
DPE
A
B
C
D
E
F
G
GES
A
B
C
D
E
F
G
Maison à LA COLLE-SUR-LOUP
Maison à LA COLLE-SUR-LOUP
Maison à LA COLLE-SUR-LOUP
Maison à LA COLLE-SUR-LOUP
Maison à LA COLLE-SUR-LOUP
Maison à LA COLLE-SUR-LOUP
Maison à LA COLLE-SUR-LOUP
Maison à LA COLLE-SUR-LOUP
Maison à LA COLLE-SUR-LOUP
Maison à LA COLLE-SUR-LOUP
Maison à LA COLLE-SUR-LOUP
Géorisques

Les informations sur les risques auxquels ce bien est exposé sont disponibles sur le site Géorisques : www.georisques.gouv.fr

Ce site est protégé par hCaptcha Politique de confidentialité et Conditions d’utilisation s’appliquent.

En poursuivant votre navigation sans modifier vos paramètres, vous acceptez l'utilisation de cookies susceptibles de réaliser des statistiques de visite. Cliquez ici pour plus d'informations