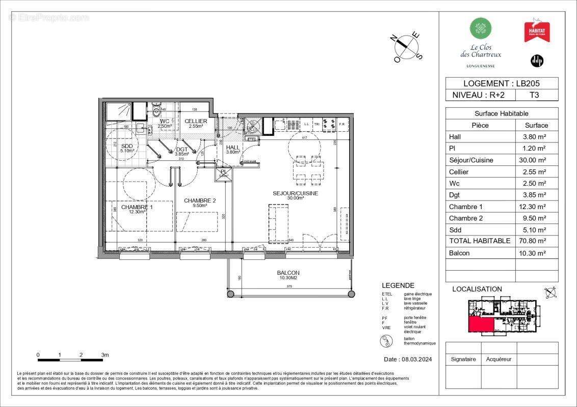
Appartement T3 Longuenesse 71m² au 2ème étage + terrasse de 10m² avec ascenseur

— Longuenesse 62219 —
223 000 €
71 m²
3 pièces
parkingbalcon/terrassejardinascenseur

Appartement 2ème étage avec ascenseur dans une résidence sécurisée situé rue des chartreux à Longuenesse et à 5 minutes de Saint-Omer.
T3 de 71m² avec terrasse de 10m².

Prix : 223 000 €* (PSLA) box compris,
Frais de notaire en sus.

Chauffage individuel électrique / ballon thermodynamique pour la production d'eau chaude.
L'ouvrage sera conforme à la réglementation thermique RE 2020.

Pour plus de renseignements contacter Mr Leliepault au [Coordonnées masquées].
www.marquepropriétaire.fr
Les informations sur les risques auxquels ce bien est exposé sont disponibles sur le site Géorisques : www. georisques. gouv. fr
Voir plus

Référence: LONGUENESSE_LB205
Bien en copropriété. Nombre de lots : 22.
Appartement à LONGUENESSE
Appartement à LONGUENESSE
Appartement à LONGUENESSE
Appartement à LONGUENESSE
Géorisques

Les informations sur les risques auxquels ce bien est exposé sont disponibles sur le site Géorisques : www.georisques.gouv.fr

Ce site est protégé par hCaptcha Politique de confidentialité et Conditions d’utilisation s’appliquent.

En poursuivant votre navigation sans modifier vos paramètres, vous acceptez l'utilisation de cookies susceptibles de réaliser des statistiques de visite. Cliquez ici pour plus d'informations