Vente en nue propriété : Appartement Erstein 3 pièce(s) 73.16 m2

— Erstein 67150 —
103 760 €
73 m²
3 pièces
parkingbalcon/terrasseascenseur

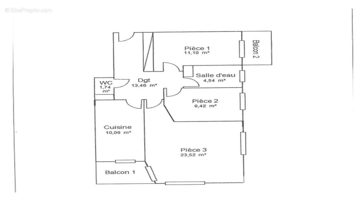
A Erstein, dans un environnement recherché, découvrez cette opportunité d'investissement patrimoniale rare. Attention : seule la nue propriété est vendue. L'usufruit est conservé ( bien à la location). Appartement T3 d'environ 74m2 avec balcon, cave et place de parking privative. Belle distribution des pièces. Entrée, pièce de vie, deux chambres, salle de bain. Pourquoi investir en nue propriété : - Prix attractif en rapport au type de bien. - Décote immédiate par rapport à la pleine propriété. - Gestion locative à la charge de l'usufruit. - Aucune fiscalité sur les loyers puisqu'ils sont du ressort de l'usufruit. - Récupération automatique de la pleine propriété à l'extinction de l'usufruit, sans frais supplémentaire. - Pas de travaux à charge nue propriétaire dès lors que le bien est loué, tous les frais sont à la charge de l'usufruit. Ce placement est idéal pour : - construire un capital immobilier. - préparer sa retraite. - diversifier son patrimoine. - investir de manière sécurisée. Charges annuelles : 1440,93 euros (récupérables auprès de l'usufruit) DPE C / GES C Agence Catherine Immobilier Laforêt Erstein Adresse: 6 rue mercière 67150 ERSTEIN Téléphone: [Coordonnées masquées] / [Coordonnées masquées] Mail: [Coordonnées masquées] / [Coordonnées masquées] Site: https://www.laforet.com/agence-immobiliere/erstein (0.48 % honoraires TTC à la charge de l'acquéreur.) Copropriété de 39 lots. Charges annuelles : 1440.93 euros.
Voir plus

Référence: 4339
Bien en copropriété. Nombre de lots : 39. Charges de copropriété : 1440 €.
Honoraires d'agence de 0.48% à la charge de l'acquéreur
Barème des honoraires
DPE
A
B
C
D
E
F
G
GES
A
B
C
D
E
F
G
Appartement à ERSTEIN
Appartement à ERSTEIN
Appartement à ERSTEIN
Appartement à ERSTEIN
Appartement à ERSTEIN
Appartement à ERSTEIN
Appartement à ERSTEIN
Appartement à ERSTEIN
Appartement à ERSTEIN
Appartement à ERSTEIN
Appartement à ERSTEIN
Géorisques

Les informations sur les risques auxquels ce bien est exposé sont disponibles sur le site Géorisques : www.georisques.gouv.fr

Ce site est protégé par hCaptcha Politique de confidentialité et Conditions d’utilisation s’appliquent.