Bénéficiez des services de nos partenaires locaux soigneusement sélectionnés
pour vous accompagner dans votre parcours d'achat immobilier

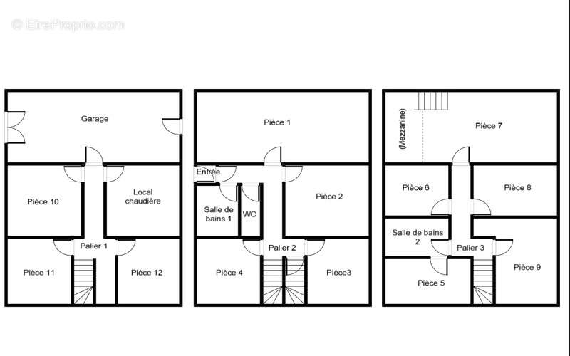
A vendre - maison 200m² à fort potentiel - 8 pièces - SAINT VRAIN (91)

— Saint-Vrain 91770 —
380 000 €
200 m² / 700 m²
8 pièces
parkingjardin

Nos partenaires locaux
Madelyne Chaudron vous propose sur le secteur de Saint-Vrain à proximité immédiate de toutes les commodités offertes par Lardy, cette maison familiale de 200m² qui vous offre un très beaux potentiel pour les amateurs de rénovation et de projets à fort potentiel.

Edifiée sur un terrain d'environ 700m² elle se compose comme suit.
Au rez-de-chaussée une séjour salon traversant donnant sur la terrasse, une cuisine donnant également sur la terrasse, 2 chambres et une salle de bain.
A l'étage 2 chambres avec un point d'eau pour possible de créer 2 salle d'eau, puis 2 autres chambres dont 1 avec accès au grenier déjà aménagé parfait pour stocker ou faire une salle de jeux.

En rez-de-jardin une cuisine d'été, un bureau, une buanderie, une chaufferie et un garage. Possibilité de faire une habitation indépendante.

La maison nécessite des travaux de rénovation, mais offre de multiples possibilités : grande maison familiale, résidence secondaire, projet locatif ou espace multigénérationnel.

Ses atouts :
Superficie généreuse
Emplacement stratégique
Nombreuses pièces et dépendances
Grand jardin
Beau cachet à valoriser

Prix attractif pour le secteur. À visiter sans tarder !

Les honoraires sont à la charge du vendeur.
Les informations sur les risques auxquels ce bien est exposé sont disponibles sur le site Géorisques : www. georisques. gouv. fr.

Réseau Immobilier CAPIFRANCE - Votre agent commercial (RSAC N°819 463 530 - Greffe de EVRY) Madelyne CHAUDRON Entrepreneur Individuel à Responsabilité Limitée [Coordonnées masquées] - Réf.943208
Voir plus

Référence: 340936344368
Honoraires à la charge du vendeur.
DPE
A
B
C
D
E
F
G
GES
A
B
C
D
E
F
G
Maison à SAINT-VRAIN
Maison à SAINT-VRAIN
Maison à SAINT-VRAIN
Maison à SAINT-VRAIN
Maison à SAINT-VRAIN
Maison à SAINT-VRAIN
Maison à SAINT-VRAIN
Maison à SAINT-VRAIN
Maison à SAINT-VRAIN
Maison à SAINT-VRAIN
Maison à SAINT-VRAIN
Géorisques

Les informations sur les risques auxquels ce bien est exposé sont disponibles sur le site Géorisques : www.georisques.gouv.fr

Ce site est protégé par hCaptcha Politique de confidentialité et Conditions d’utilisation s’appliquent.

En poursuivant votre navigation sans modifier vos paramètres, vous acceptez l'utilisation de cookies susceptibles de réaliser des statistiques de visite. Cliquez ici pour plus d'informations