Villa Provençale de 6 pièces avec dépendance.

— Flayosc 83780 —
850 000 €
250 m² / 7 300 m²
7 pièces
parkingbalcon/terrassejardinpiscine

Dans un environnement calme avec une vue dégagée au cœur de la nature venez découvrir cette très belle villa provençale de 250m2 environs sur 7300 m2 de terrain sans vis à vis.
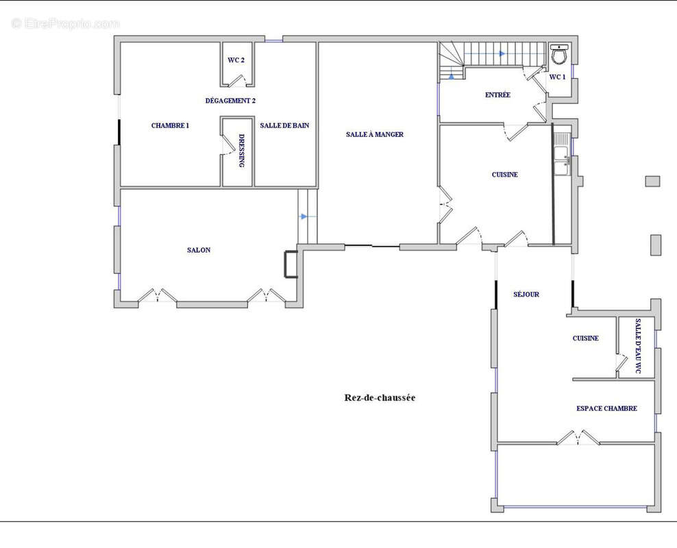
Elle se compose d'une entrée avec toilette inviter et placards, une cuisine équipée spacieuse et indépendante, une vaste salle à manger de 50 m2, un double séjour avec cheminée en pierre de 40 m2. Au même niveau une suite parentale de 34 m2 avec une salle de bains et douche, un dressing et un WC indépendant.
A l'étage 3 belles chambres de 14, 24 et 18m2 dont une donnant sur un balcon. Une salle de bain et douche.et un WC indépendant.
Une porte depuis la cuisine permet un accès direct à un studio de 34m2 composé d'un salon/salle à manger/cuisine, un espace chambre, une salle d'eau avec WC.
Une terrasse couverte avec barbecue et une seconde terrasse avec accés direct à la piscine.
Celui-ci peut être loué en saisonnier avec un accès totalement indépendant ou bien réunis à la villa.
Une magnifique piscine traditionnelle à débordement. Plusieurs terrasses cocooning, une cuisine d'été avec débarras, une buanderie.
Un spacieux garage de 55 m2, un local sous-terrasse de 70 m2, une cave de 25 m2 et de nombreux parkings compléte ce bien.
Equipements de qualité
Chauffage central au sol avec chaudière à pellet, climatisation réversible, forage et eau de ville.Cumulus Thermodynamique, toiture refaite depuis moins de 5 ans.
Fosse septique .
Les informations sur les risques auxquels ce bien est exposé sont diponibles sur le site Géorisque.
Voir plus

Référence: 725
Honoraires à la charge du vendeur.
Barème des honoraires
DPE
A
B
C
D
E
F
G
GES
A
B
C
D
E
F
G
Maison à FLAYOSC
Maison à FLAYOSC
Maison à FLAYOSC
Maison à FLAYOSC
Maison à FLAYOSC
Maison à FLAYOSC
Maison à FLAYOSC
Maison à FLAYOSC
Maison à FLAYOSC
Maison à FLAYOSC
Maison à FLAYOSC
Maison à FLAYOSC
Maison à FLAYOSC
Maison à FLAYOSC
Maison à FLAYOSC
Maison à FLAYOSC
Maison à FLAYOSC
Maison à FLAYOSC
Maison à FLAYOSC
Maison à FLAYOSC
Maison à FLAYOSC
Maison à FLAYOSC
Maison à FLAYOSC
Maison à FLAYOSC
Maison à FLAYOSC
Géorisques

Les informations sur les risques auxquels ce bien est exposé sont disponibles sur le site Géorisques : www.georisques.gouv.fr

Ce site est protégé par hCaptcha Politique de confidentialité et Conditions d’utilisation s’appliquent.

En poursuivant votre navigation sans modifier vos paramètres, vous acceptez l'utilisation de cookies susceptibles de réaliser des statistiques de visite. Cliquez ici pour plus d'informations