Bénéficiez des services de nos partenaires locaux soigneusement sélectionnés
pour vous accompagner dans votre parcours d'achat immobilier

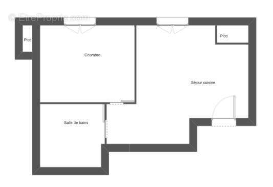
SOUS COMPROMIS DE VENTE - CANNES secteur bas du Petit Juas au calme, un 3 pièces transformé en 2p / studio

— Cannes 06400 —
204 000 €
46 m²
3 pièces

Nos partenaires locaux
SOUS COMPROMIS DE VENTE - Appartement sur CANNES à 2 pas du centre-ville secteur bas du Petit Juas et au calme, un 3 pièces à l'origine transformé en 2 appartements indépendants : un 2 pièces avec salon, cuisine équipée, chambre de 11 m2, salle de bains WC et un studio (possibilité de le louer 600 € / mois) il est composé d'une pièce à vivre avec un coin cuisine équipée, une salle de bains avec WC. Il a été autorisé par la copropriété de créer une terrasse profonde suspendue côté espace vert. Idéal pour un pied à terre avec un rendement locatif d'environ 1.500 € / mois en meublé à l'année et encore plus si Airbnb ou saisonnier. Ou alors réaménager en 3 pièces pour vivre proche du centre. Faible charge 50 € / mois. Honoraires vendeur. http://www.cannes-azur-immobilier.com CANNES AZUR IMMOBILIER secteurs CANNES, LE CANNET, MOUGINS, MOUANS-SARTOUX, VALBONNE, LA ROQUETTE SUR SIAGNE... [Coordonnées masquées] http://www.cannes-azur-immobilier.com CANNES AZUR IMMOBILIER secteurs CANNES, LE CANNET, MOUGINS, MOUANS-SARTOUX, LA ROQUETTE SUR SIAGNE... [Coordonnées masquées]
Voir plus

Référence: 866
Honoraires à la charge du vendeur.
Barème des honoraires
DPE
A
B
C
D
E
F
G
GES
A
B
C
D
E
F
G
Appartement à CANNES
Appartement à CANNES
Appartement à CANNES
Appartement à CANNES
Appartement à CANNES
Appartement à CANNES
Appartement à CANNES
Appartement à CANNES
Appartement à CANNES
Appartement à CANNES
Appartement à CANNES
Appartement à CANNES
Appartement à CANNES
Géorisques

Les informations sur les risques auxquels ce bien est exposé sont disponibles sur le site Géorisques : www.georisques.gouv.fr

Ce site est protégé par hCaptcha Politique de confidentialité et Conditions d’utilisation s’appliquent.