Bénéficiez des services de nos partenaires locaux soigneusement sélectionnés
pour vous accompagner dans votre parcours d'achat immobilier

Nouveaute brenat proche aubiere

— Brenat 63500 —
245 000 €
75 m² / 417 m²
4 pièces
parkingjardin

Nos partenaires locaux
NOUVEAUTE de l'AGENCE IMMOBILIERE VERNET IMMO Tél [Coordonnées masquées] / [Coordonnées masquées] - visite possible le samedi.
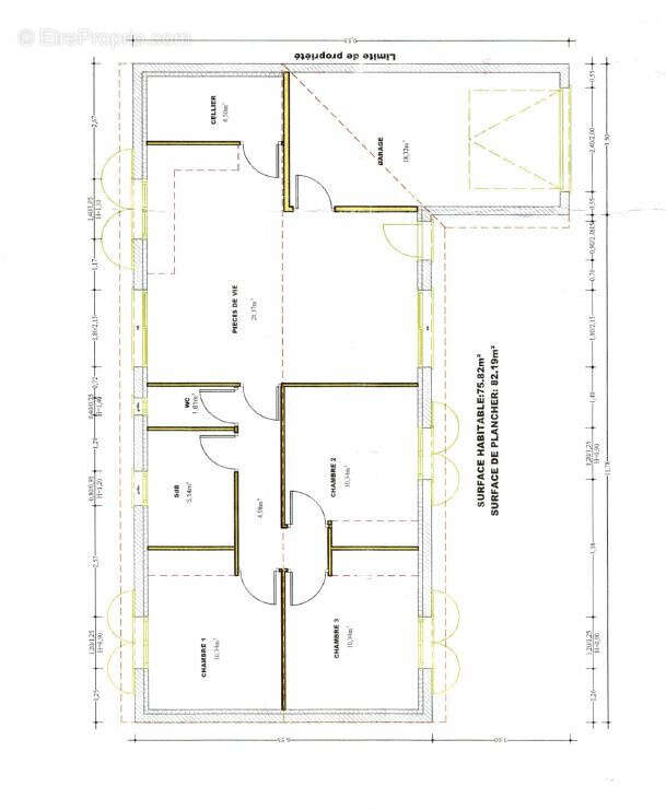
Dans le joli village de BRENAT proche AUBIERE, UN PLAIN PIED de 2024 (75.80 m2 surface de référence) composé :
* une pièce de vie de 28 m2 traversante avec 2 baies vitrées et climatisation réversible (installation cuisine aménagée à prévoir),
* 3 chambres carrelées (10.34 m2 - 10.34 m2 - 10.34 m2),
* une salle de douche avec fenêtre (5.14 m2)
* un wc avec lave-mains et fenêtre
* un cellier carrelé avec ballon d'eau chaude thermodynamique (4.50 m2) donnant sur un garage carrelé et isolé avec porte automatisée (18 m2).
Chauffage : climatisation réversible de marque GREEN dans le séjour, radiateurs électriques dans les chambres.
Ballon thermodynamique de marque HAIER
Fenêtres double vitrage bois avec volets bois, baies vitrées aluminium avec volets roulants électriques.
Robinet extérieur.
Tout à l’égout
Taxe foncière 2025 : exonéré
DPE du 22 /01/2026 : B 71 kwhep/m2.an - GES du 22 /01/2026 : A 2 Kgéqco2/m2.an
Estimation des coûts annuels d’énergie du logement 670 € - 970 €. Prix moyen des énergies indexés années 2021-2022 et 2023
Les informations sur les risques auxquels ce bien est exposé sont disponibles sur le site Géorisques https://www.georisques.gouv.fr/
Voir plus

Barème des honoraires
DPE
A
B
C
D
E
F
G
GES
A
B
C
D
E
F
G
Maison à BRENAT
Maison à BRENAT
Maison à BRENAT
Maison à BRENAT
Maison à BRENAT
Maison à BRENAT
Maison à BRENAT
Maison à BRENAT
Maison à BRENAT
Maison à BRENAT
Maison à BRENAT
Maison à BRENAT
Maison à BRENAT
Maison à BRENAT
Géorisques

Les informations sur les risques auxquels ce bien est exposé sont disponibles sur le site Géorisques : www.georisques.gouv.fr

Ce site est protégé par hCaptcha Politique de confidentialité et Conditions d’utilisation s’appliquent.