Bénéficiez des services de nos partenaires locaux soigneusement sélectionnés
pour vous accompagner dans votre parcours d'achat immobilier

Maison familiale avec panneaux solaires Loire-Authion (Andard)

— Saint-Mathurin-Sur-Loire 49800 —
414 060 €
184 m² / 500 m²
8 pièces
parkingjardin

Nos partenaires locaux
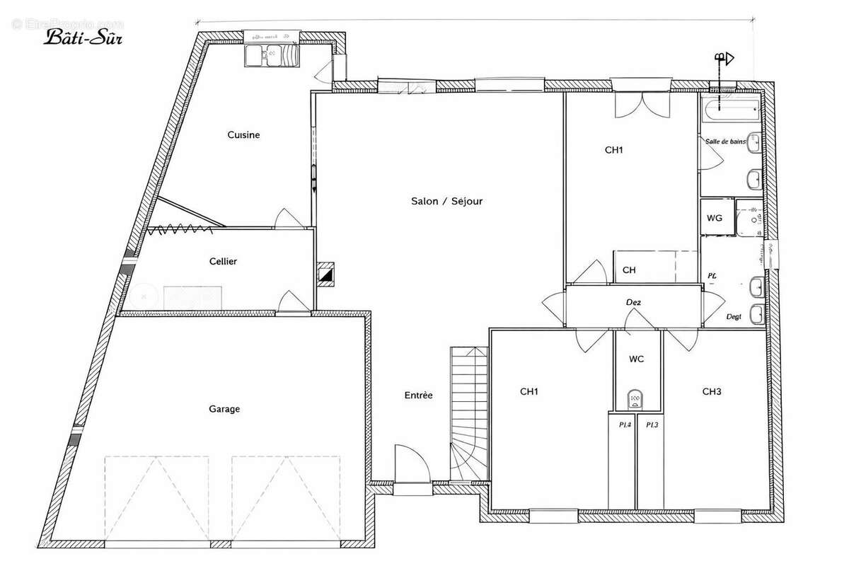
Située au coeur du bourg d'Andard, à proximité immédiate des commerces, écoles et transports, cette maison indépendante construite en 2010 offre un cadre de vie confortable, fonctionnel et économe en énergie. Développant une surface habitable d'environ 184 m², elle se compose au rez-de-chaussée d'une entrée, d'un vaste salon-séjour lumineux exposé sud-est, d'une cuisine ouverte aménagée et équipée, d'un cellier, de trois chambres, dont une suite parentale avec salle de bains et douche, ainsi qu'une salle d'eau indépendante et des WC. A l'étage, une grande mezzanine d'environ 40 m² offre un espace polyvalent (bureau, salle de jeux, salon TV), complétée par une chambre supplémentaire et une salle d'eau avec WC. A l'extérieur, vous profiterez d'un jardin clos d'environ 500 m², idéal pour les moments en famille, ainsi que d'un garage double de 36 m². La maison bénéficie de prestations techniques de qualité, avec : # chauffage au sol par pompe à chaleur # eau chaude thermodynamique # panneaux photovoltaïques en autoconsommation (installation de 8 panneaux, 3 kWc) # excellent classement énergétique (DPE A / GES A), garantissant des charges maîtrisées. Un bien rare sur le secteur, alliant volumes, luminosité, calme et performance énergétique, idéal pour une famille à la recherche d'un logement durable et confortable, à seulement quelques minutes d'Angers. (3.00 % honoraires TTC à la charge de l'acquéreur.) Adrien BODIN (EI) Agent Commercial - Numéro RSAC : 900911652 - ANGERS.
Voir plus

Référence: 416
Honoraires d'agence de 3% à la charge de l'acquéreur
Barème des honoraires
DPE
A
B
C
D
E
F
G
GES
A
B
C
D
E
F
G
Maison à SAINT-MATHURIN-SUR-LOIRE
Maison à SAINT-MATHURIN-SUR-LOIRE
Maison à SAINT-MATHURIN-SUR-LOIRE
Maison à SAINT-MATHURIN-SUR-LOIRE
Maison à SAINT-MATHURIN-SUR-LOIRE
Maison à SAINT-MATHURIN-SUR-LOIRE
Maison à SAINT-MATHURIN-SUR-LOIRE
Maison à SAINT-MATHURIN-SUR-LOIRE
Maison à SAINT-MATHURIN-SUR-LOIRE
Maison à SAINT-MATHURIN-SUR-LOIRE
Maison à SAINT-MATHURIN-SUR-LOIRE
Géorisques

Les informations sur les risques auxquels ce bien est exposé sont disponibles sur le site Géorisques : www.georisques.gouv.fr

Ce site est protégé par hCaptcha Politique de confidentialité et Conditions d’utilisation s’appliquent.