Bénéficiez des services de nos partenaires locaux soigneusement sélectionnés
pour vous accompagner dans votre parcours d'achat immobilier

Terrain 500 m² à Bailly-Romainvilliers

— Bailly-Romainvilliers 77700 —
188 800 €
500 m²

Nos partenaires locaux
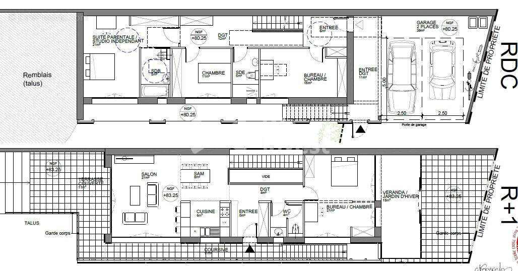
Nouveau, à 5 min de Bailly Romainvilliers, beau terrain à bâtir de 500m² env. avec projet accordé pour une maison d'architecte de 200m² env., 4 chambres, salon séjour, garage double…
Orientation idéale plein SUD.
Quartier résidentiel privilégié.
Viabilités sur rue : EU, Epot, Elec, Fibre, Gaz).
Etude de sol G1 réalisée.
Permis de Construire accordé: démarrez vos travaux dans 3 mois !

Honoraires à la charge du vendeur. Les informations sur les risques auxquels ce bien est exposé sont disponibles sur le site Géorisques : georisques.gouv.fr.

Votre conseiller We Invest France : Cyril Savry
Agent commercial (Entreprise individuelle)
RSAC 815 096 227 MEAUX.
Les informations sur les risques auxquels ce bien est exposé sont disponibles sur le site Géorisques : www.georisques.gouv.fr
Voir plus

Référence: VT4922
Honoraires à la charge du vendeur.
Barème des honoraires
Terrain à BAILLY-ROMAINVILLIERS
Terrain à BAILLY-ROMAINVILLIERS
Terrain à BAILLY-ROMAINVILLIERS
Géorisques

Les informations sur les risques auxquels ce bien est exposé sont disponibles sur le site Géorisques : www.georisques.gouv.fr

Ce site est protégé par hCaptcha Politique de confidentialité et Conditions d’utilisation s’appliquent.