Bénéficiez des services de nos partenaires locaux soigneusement sélectionnés
pour vous accompagner dans votre parcours d'achat immobilier

T2/3 68 m2 avec cave proche centre ville

— Perpignan 66000 —
99 000 €
68 m²
3 pièces
balcon/terrasse

Nos partenaires locaux
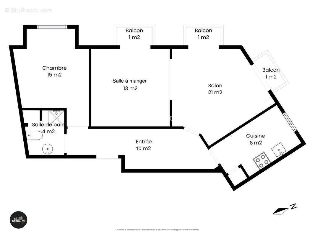
PERPIGNAN, à proximité du centre-ville (environ 15 minutes à pied du Castillet et du Palais des Congrès) et en limite du quartier Las Cobas, appartement T2/3 d'environ 68 m2 habitables situé au premier étage d’un petit collectif.
Il comprend : une entrée, une cuisine indépendante semi équipée, un salon-salle à manger ouvrant sur trois petits balcons, une chambre spacieuse, une salle d'eau avec WC.
Le chauffage central au gaz de ville est un mode de chauffage confortable et bien adapté à ce logement avec sa belle hauteur sous plafond. Les menuiseries sont en double vitrage, assurant une bonne isolation.
L’appartement dispose d’une porte d’entrée blindée. La cave privative de 4 m2, également sécurisée par une porte blindée, constitue un espace de rangement pratique au quotidien.
Le stationnement est possible au pied de l’immeuble et dans les rues adjacentes (zone gratuite).
Les appels de fonds concernant les charges de copropriété sont de 58 €/mois.
La taxe foncière s'élève à 765 €.
Le montant estimé des dépenses annuelles d'énergie pour un usage standard : entre 1 280 € et 1 770 € abonnements compris (prix moyens des énergies indexés sur l'année 2022).
Les informations sur les risques auxquels ce bien est exposé sont disponibles sur le site Géorisques : www.georisques.gouv.fr
Venez visiter ce charmant appartement situé à seulement 15 minutes de l'hypercentre. Contactez nous sans tarder au [Coordonnées masquées]
Voir plus

Référence: 650
Bien en copropriété. Nombre de lots : 12. Charges de copropriété : 887 €.
Honoraires à la charge du vendeur.
Barème des honoraires
DPE
A
B
C
D
E
F
G
GES
A
B
C
D
E
F
G
Appartement à PERPIGNAN
Appartement à PERPIGNAN
Appartement à PERPIGNAN
Appartement à PERPIGNAN
Appartement à PERPIGNAN
Appartement à PERPIGNAN
Appartement à PERPIGNAN
Appartement à PERPIGNAN
Appartement à PERPIGNAN
Appartement à PERPIGNAN
Appartement à PERPIGNAN
Appartement à PERPIGNAN
Appartement à PERPIGNAN
Appartement à PERPIGNAN
Appartement à PERPIGNAN
Appartement à PERPIGNAN
Appartement à PERPIGNAN
Géorisques

Les informations sur les risques auxquels ce bien est exposé sont disponibles sur le site Géorisques : www.georisques.gouv.fr

Ce site est protégé par hCaptcha Politique de confidentialité et Conditions d’utilisation s’appliquent.