Bénéficiez des services de nos partenaires locaux soigneusement sélectionnés
pour vous accompagner dans votre parcours d'achat immobilier

Commerce 444 m² à Longperrier

— Longperrier 77230 —
830 000 €
444 m²

Nos partenaires locaux
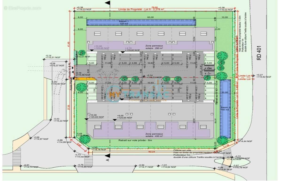
My Transac vous propose à la vente des cellules neuves à partir de 222 m² au sein de la ZA de la noue sur la commune de Longperrier 77
Prestations :

- Site clos et sécurisé
- Hauteur libre de 7,50 m
- Charge au sol de 3 t/m²
- Accès de plain-pied par porte sectionnelle de 3,50m x 3,50m
- Mezzanine de bureaux livré brut
- Voirie lourde
- 3 emplacements de parking VL
- Puissance électrique de 18KVA

Conditions Financières :

Prix à partir de 1870 €/m² HT
Régime Fiscal : TVA

Honoraires 5% HT en sus du prix Net vendeur

Accès routiers : A1O4 : 5 min, A1 : 10 min, A3 : 15 min

Transport : Gare Roissy en France RER B
Voir plus

Référence: AG985-6768346
Commerce à LONGPERRIER
Commerce à LONGPERRIER
Commerce à LONGPERRIER
Commerce à LONGPERRIER
Géorisques

Les informations sur les risques auxquels ce bien est exposé sont disponibles sur le site Géorisques : www.georisques.gouv.fr

Ce site est protégé par hCaptcha Politique de confidentialité et Conditions d’utilisation s’appliquent.