Bénéficiez des services de nos partenaires locaux soigneusement sélectionnés
pour vous accompagner dans votre parcours d'achat immobilier

Voir tous les partenaires locaux

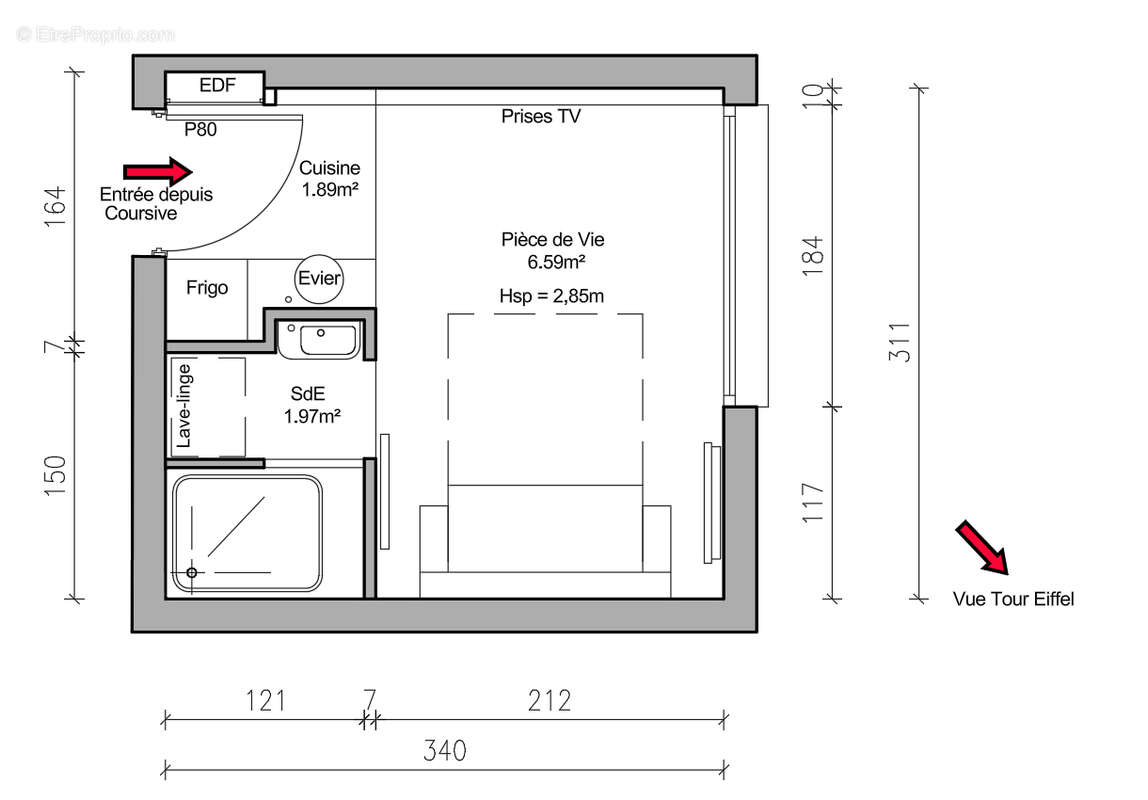
Studio 11m2 en dernier étage avec vue sur tour Eiffel

— Paris-16e 75016 —
126 000 €
11 m²
1 pièce
ascenseur

Nos partenaires locaux
Votre expert en revêtement
Vente, pose et rénovations de sols : accompagnement complet, qualité durable & finitions soignées - contactez nous au :
06 20 66 06 94 ou cliquez-ici
Votre déménageur local
Simplifiez vous la vie ! Déménagement, Monte-meuble, Vente de matériel et Débarras sur toute l'Ile de France !
01 44 90 02 18 ou cliquez-ici
Votre assurance emprunteur
Faites appel à Denis pour vous accompagner dans votre assurance de prêt
06 09 24 11 24 ou cliquez-ici
Votre architecte local
Rénovation, création sur mesure et agrandissement : à vos cotés pour les professionnels & particuliers. Contact au :
06 80 55 27 16 ou cliquez-ici
Votre déménageur
Déménagement national ou international ? Bénéficiez d'un accompagnement sur mesure à chaque étape.
04 78 97 33 43 ou cliquez-ici
Votre déménageur local
Vous apporte sérénité et professionnalisme depuis vos inventaires jusqu’au déballage et à l’installation. Contact au :
01 40 11 90 90 ou cliquez-ici

Voir tous les partenaires locaux

Village d'Auteuil - Molitor Lumineuse studette en dernier étage avec ascenseur* 11m2 vue dégagée, y compris sur la Tour Eiffel, au sein d'une jolie voie privée piétonne, arborée, et avec fontaines en mosaïque bleue, bel immeuble Art Déco (1934, architecte : E.Benier) avec super gardienne à résidence, et ascenseur. Au 8e et dernier étage, Appartement CALME, belle hauteur sous plafond de 2m87, entrée avec coin cuisine, séjour, et salle d'eau. Fenêtres PVC double vitrage et volets pliants métalliques. 2 wc propres sur palier. Vendu avec une cave en sous-sol Charges 75 euros/mois (décomposées en 50 euros + 25 euros de chauffage collectif "CPCU" inclus) Métro Michel-Ange Molitor (lignes 9 et 10) à 150m Jardin des Serres d'Auteuil, Piscine Molitor, et Stade Roland-Garros à moins de 500m Contact pour renseignements et visites : Yann HAMET [Coordonnées masquées] Copropriété de 200 lots. Charges annuelles : 720 euros. Yann HAMET (EI) Agent Commercial - Numéro RSAC : 839035078 - PARIS.
Voir plus

Référence: 1241
Bien en copropriété. Nombre de lots : 200. Charges de copropriété : 720 €.
Honoraires à la charge du vendeur.
DPE
A
B
C
D
E
F
G
GES
A
B
C
D
E
F
G
Appartement à PARIS-16E
Appartement à PARIS-16E
Appartement à PARIS-16E
Appartement à PARIS-16E
Appartement à PARIS-16E
Géorisques

Les informations sur les risques auxquels ce bien est exposé sont disponibles sur le site Géorisques : www.georisques.gouv.fr

Ce site est protégé par hCaptcha Politique de confidentialité et Conditions d’utilisation s’appliquent.

En poursuivant votre navigation sans modifier vos paramètres, vous acceptez l'utilisation de cookies susceptibles de réaliser des statistiques de visite. Cliquez ici pour plus d'informations