Bénéficiez des services de nos partenaires locaux soigneusement sélectionnés
pour vous accompagner dans votre parcours d'achat immobilier

Duplex familial de 130m² avec extérieurs

— Paris-10e 75010 —
850 000 €
130 m²
5 pièces
balcon/terrasseascenseur

Nos partenaires locaux
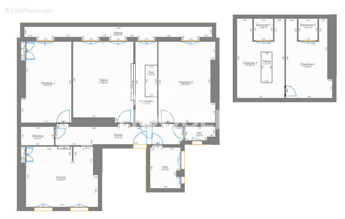
Guy Hoquet Faubourg Saint-Martin Exclusivité Nous avons le plaisir de vous présenter notre appartement coup de coeur pour cette rentrée 2026, duplex familial, situé dans une copropriété avec ascenseur, offrant de beaux volumes et plusieurs espaces extérieurs, un bien rare sur le secteur. L'appartement développe une surface de 118m² au sol pour 108m² Carrez réparties sur deux niveaux ainsi que 12m² d'extérieurs. Au premier niveau, vous découvrirez un séjour, une cuisine avec salle à manger, deux chambres lumineuses, une salle de bain, un dressing, ainsi que des WC sépares. Le second niveau accueille des chambres supplémentaires chacune disposant de son balconnet indépendant. Situé rue Philippe de Girard, à proximité immédiate de la place Jean Karski, l'appartement bénéficie d'un environnement commerçant et bien desservi, avec transports à proximité. Les écoles Louis Blanc (maternelle et élémentaires) ainsi que le lycée Colbert à proximité immédiate. L'appartement est classée DPE D et nécessite des travaux de rénovation générale (électricité, plomberie, peintures), sans travaux d'isolation à prévoir. Enfin, une surprise vous attend lors de la visite... et elle mérite le détour. Contactez sans plus attendre notre agence de quartier au [Coordonnées masquées]. Copropriété de 69 lots - dont 35 lots habitation. Charges annuelles : 3600 euros.
Voir plus

Bien en copropriété. Nombre de lots : 69. Charges de copropriété : 3600 €.
Honoraires à la charge du vendeur.
Barème des honoraires
DPE
A
B
C
D
E
F
G
GES
A
B
C
D
E
F
G
Appartement à PARIS-10E
Appartement à PARIS-10E
Appartement à PARIS-10E
Appartement à PARIS-10E
Appartement à PARIS-10E
Appartement à PARIS-10E
Appartement à PARIS-10E
Appartement à PARIS-10E
Appartement à PARIS-10E
Appartement à PARIS-10E
Géorisques

Les informations sur les risques auxquels ce bien est exposé sont disponibles sur le site Géorisques : www.georisques.gouv.fr

Ce site est protégé par hCaptcha Politique de confidentialité et Conditions d’utilisation s’appliquent.

En poursuivant votre navigation sans modifier vos paramètres, vous acceptez l'utilisation de cookies susceptibles de réaliser des statistiques de visite. Cliquez ici pour plus d'informations