Bénéficiez des services de nos partenaires locaux soigneusement sélectionnés
pour vous accompagner dans votre parcours d'achat immobilier

Rare Villa d'architecte 11 pièces piscine 21 ares

— Jarny 54800 —
445 000 €
300 m² / 2 085 m²
11 pièces
parkingbalcon/terrassejardinpiscine

Nos partenaires locaux
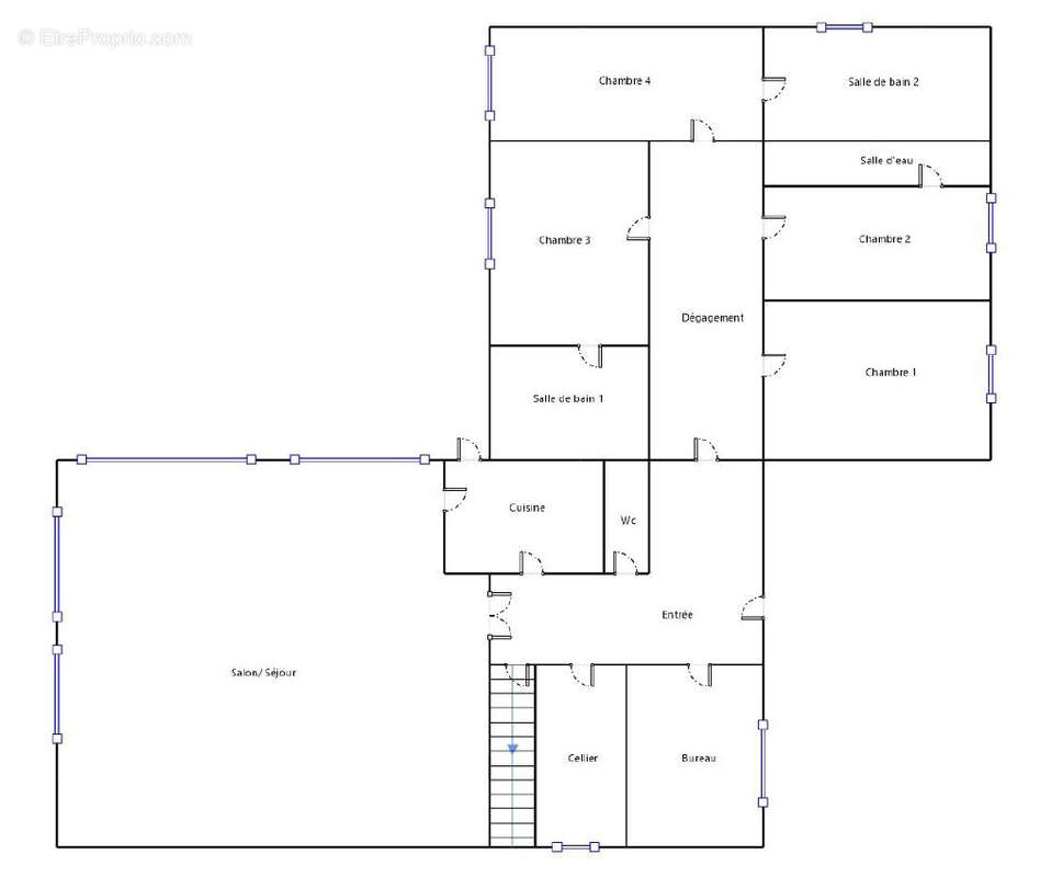
Rare ! Magnifique villa d'architecte indépendante de 11 pièces d'env. 300 m2 habitables de plain-pied, comprenant pour la partie principale une belle entrée, un bureau, un cellier, un magnifique salon séjour de 72 m2 avec cheminée centrale et de nombreuses ouvertures sur la terrasse, une partie nuit avec 4 chambres et 3 sdb, en annexe vous disposerez également de 2 logements équipés avec entrée commune indépendante à la villa pouvant servir d'hébergements complémentaires ou de logements à louer, ainsi que de nombreuses caves dont une cave à vins et divers locaux techniques. La villa dispose d'une double dalle de béton avec vide sanitaire ce qui crée une excellente isolation entre les 2 niveaux. A l'extérieur, sur un splendide terrain clos et arboré de 2085 m2 sans vis-à-vis, vous profiterez d'une généreuse terrasse de plus de 200 m2 ainsi que d'une piscine de 10x5m en pointe de diamant ensoleillée toute la journée et également d'un garage double motorisé attenant. La villa est saine et d'excellente qualité de construction et dispose d'un poêle à pellets. Ce bien est un réel COUP DE COEUR !
JARNY Centre: 25 Kms de Metz et proche de l'A4 vers PARIS ou STRASBOURG
Voir plus

Honoraires à la charge du vendeur.
Barème des honoraires
DPE
A
B
C
D
E
F
G
GES
A
B
C
D
E
F
G
Maison à JARNY
Maison à JARNY
Maison à JARNY
Maison à JARNY
Maison à JARNY
Maison à JARNY
Maison à JARNY
Maison à JARNY
Maison à JARNY
Maison à JARNY
Maison à JARNY
Maison à JARNY
Maison à JARNY
Maison à JARNY
Maison à JARNY
Maison à JARNY
Maison à JARNY
Maison à JARNY
Maison à JARNY
Maison à JARNY
Maison à JARNY
Maison à JARNY
Géorisques

Les informations sur les risques auxquels ce bien est exposé sont disponibles sur le site Géorisques : www.georisques.gouv.fr

Ce site est protégé par hCaptcha Politique de confidentialité et Conditions d’utilisation s’appliquent.

En poursuivant votre navigation sans modifier vos paramètres, vous acceptez l'utilisation de cookies susceptibles de réaliser des statistiques de visite. Cliquez ici pour plus d'informations