Bénéficiez des services de nos partenaires locaux soigneusement sélectionnés
pour vous accompagner dans votre parcours d'achat immobilier

A vendre - cannes - le gray d'albion

— Cannes 06400 —
1 490 000 €
57 m²
2 pièces
parkingbalcon/terrasseascenseur

Nos partenaires locaux
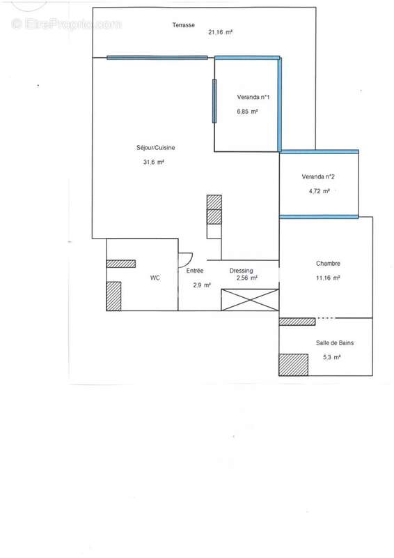
Situé au cœur de l’une des résidences les plus prestigieuses de Cannes, Le Gray d’Albion, à seulement quelques pas du Palais des Festivals et des plages, ce superbe appartement au 7ᵉ et dernier étage offre un cadre de vie d’exception.
Dès l’entrée, vous serez séduit par une atmosphère élégante, sublimée par des matériaux nobles et des prestations haut de gamme.
La vaste pièce de vie lumineuse accueille une cuisine américaine entièrement équipée et s’ouvre sur une profonde terrasse exposée Ouest, offrant une vue mer et un espace idéal pour profiter des soirées cannoises.
La partie nuit se compose :
• d’une chambre confortable,
• d’une salle de bains raffinée avec baignoire et douche,
• d’un WC indépendant.
Aucun travaux à prévoir : tout a été pensé pour un confort optimal et une modernité intemporelle.
Un parking sécurisé en sous-sol complète ce bien rare dans un immeuble de standing.
Un bien rare et prestigieux
Un parfait équilibre entre emplacement, prestige et qualité de vie.
Voir plus

Référence: 86601160
DPE
A
B
C
D
E
F
G
GES
A
B
C
D
E
F
G
Appartement à CANNES
Appartement à CANNES
Appartement à CANNES
Appartement à CANNES
Appartement à CANNES
Appartement à CANNES
Appartement à CANNES
Appartement à CANNES
Appartement à CANNES
Appartement à CANNES
Appartement à CANNES
Appartement à CANNES
Géorisques

Les informations sur les risques auxquels ce bien est exposé sont disponibles sur le site Géorisques : www.georisques.gouv.fr

Ce site est protégé par hCaptcha Politique de confidentialité et Conditions d’utilisation s’appliquent.