Bénéficiez des services de nos partenaires locaux soigneusement sélectionnés
pour vous accompagner dans votre parcours d'achat immobilier

Appartement

— Courbevoie 92400 —
533 000 €
88 m²
3 pièces
parkingbalcon/terrasseascenseur

Nos partenaires locaux
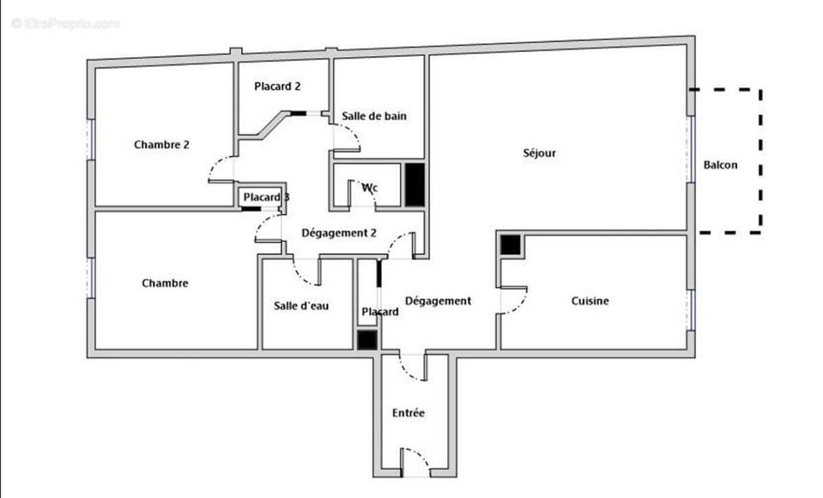
COURBEVOIE - RUE DE NORMANDIE - 3/4 PIECES - 88m² - 2/3 CHAMBRES - CAVE

Efficity, l'agence qui estime votre bien en ligne vous propose, cet appartement familial de 87,69 m² dans une résidence de standing.
Appartement très au calme, le séjour donnant la rue de Normandie en sens unique et les chambre sur un parc arboré.

Cet appartement est situé dans une résidence de 1980, au 4ième étage avec ascenseur et est composé de:
- une entrée avec placard
- une cuisine séparée
- un double séjour donnant sur un balcon permettant de mettre une petite table pour 4 personnes
- 2 chambres avec vue sur le parc de la résidence
- Possibilité de créer une 3ième chambre
- 1 salle de douche
- une salle de bain
- des toilettes séparées
- un dressing

Cet appartement dispose d'une cave .
Un box en sous-sol peut être acquis en sus.
A 5min du T2 Fauvelles, à 14 min à pied de La Défense donnant accès au RER A - RER E - Ligne U & à 11 min à pied de la ligne U Courbevoie
A proximité de l'avenue Marceau avec tous les commerces de bouche.
Les informations sur les risques auxquels ce bien est exposé sont disponibles sur le site Georisque : georisques. gouv. fr
Sophie Petit - EI - est Agent Commercial mandataire en immobilier, immatriculé au Registre Spécial des Agents Commerciaux du Tribunal de Commerce de Nanterre sous le n°811687482.
Siège social du mandant : effiCity, 48 avenue de Villiers - 75017 PARIS - Société par Actions Simplifiée, société au capital de 132 373,05 euros, immatriculée au RCS Paris 497 617 746 et titulaire de la Carte professionnelle CPI 75[Coordonnées masquées]02 025 - CCI Paris IDF - Caisse de Garantie : GALIAN Assurances 89 rue de la Boétie 75008 Paris
Voir plus

Référence: 209476
Bien en copropriété. Nombre de lots : 24. Charges de copropriété : 283 €.
Honoraires d'agence de 4% à la charge de l'acquéreur
Barème des honoraires
DPE
A
B
C
D
E
F
G
GES
A
B
C
D
E
F
G
Appartement à COURBEVOIE
Appartement à COURBEVOIE
Appartement à COURBEVOIE
Appartement à COURBEVOIE
Appartement à COURBEVOIE
Appartement à COURBEVOIE
Appartement à COURBEVOIE
Appartement à COURBEVOIE
Appartement à COURBEVOIE
Appartement à COURBEVOIE
Appartement à COURBEVOIE
Géorisques

Les informations sur les risques auxquels ce bien est exposé sont disponibles sur le site Géorisques : www.georisques.gouv.fr

Ce site est protégé par hCaptcha Politique de confidentialité et Conditions d’utilisation s’appliquent.

En poursuivant votre navigation sans modifier vos paramètres, vous acceptez l'utilisation de cookies susceptibles de réaliser des statistiques de visite. Cliquez ici pour plus d'informations