Bénéficiez des services de nos partenaires locaux soigneusement sélectionnés
pour vous accompagner dans votre parcours d'achat immobilier

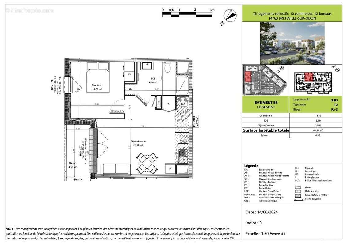
Appartement 41 m² à Bretteville-Sur-Odon

— Bretteville-Sur-Odon 14760 —
175 000 €
41 m²
2 pièces
parkingbalcon/terrasseascenseuraccès handicapé

Nos partenaires locaux
Votre agence CASA, agence immobilière à Caen, vous propose à la vente ce superbe appartement 2 pièces idéalement situé à Bretteville-sur-Odon, dans un quartier dynamique et recherché, profitant à la fois de la proximité des grands équipements et pôles tertiaires et d'un accès rapide au centre-ville de Caen, à seulement quelques minutes.
La résidence séduit par son architecture contemporaine, son emplacement stratégique et ses commerces et services en pied d'immeuble, gage d'un confort de vie au quotidien et d'une véritable pérennité patrimoniale.

Ses atouts :
Résidence sécurisée avec visiophone
Parking en sous-sol et caves privatives
Isolation renforcée pour un confort optimal
Ballon thermodynamique (pompe à chaleur), synonyme d'économies d'énergie
Placards aménagés et volets roulants motorisés
Extérieur privatif pour chaque logement (balcon, terrasse ou jardin selon configuration)
Cet appartement, aussi bien adapté à une résidence principale qu'à un investissement locatif, offre un cadre de vie agréable, entre tranquillité et commodités urbaines.

Points forts de la localisation :
À proximité immédiate des transports, zones tertiaires et grands axes
Commerces, écoles et services accessibles à pied
Centre-ville de Caen à quelques minutes seulement
Ne manquez pas cette opportunité rare d'acquérir un logement alliant modernité, performance énergétique et qualité de vie.

Opportunité à saisir. Contactez dès maintenant votre agence CASA pour organiser une présentation

Honoraires à la charge du vendeur. Dans une copropriété de 78 lots. Aucune procédure n'est en cours. Non soumis au DPE. Les informations sur les risques auxquels ce bien est exposé sont disponibles sur le site Géorisques : georisques.gouv.fr.
Voir plus

Référence: 587-B2303-CASAIMMO14
Bien en copropriété. Nombre de lots : 78.
Honoraires à la charge du vendeur.
Barème des honoraires
Appartement à BRETTEVILLE-SUR-ODON
Appartement à BRETTEVILLE-SUR-ODON
Appartement à BRETTEVILLE-SUR-ODON
Géorisques

Les informations sur les risques auxquels ce bien est exposé sont disponibles sur le site Géorisques : www.georisques.gouv.fr

Ce site est protégé par hCaptcha Politique de confidentialité et Conditions d’utilisation s’appliquent.

En poursuivant votre navigation sans modifier vos paramètres, vous acceptez l'utilisation de cookies susceptibles de réaliser des statistiques de visite. Cliquez ici pour plus d'informations