Bénéficiez des services de nos partenaires locaux soigneusement sélectionnés
pour vous accompagner dans votre parcours d'achat immobilier

Appartement type 3 avec jardin et garage proche route de Lyon

— Le Pontet 84130 —
179 500 €
92 m²
3 pièces
balcon/terrassejardin

Nos partenaires locaux
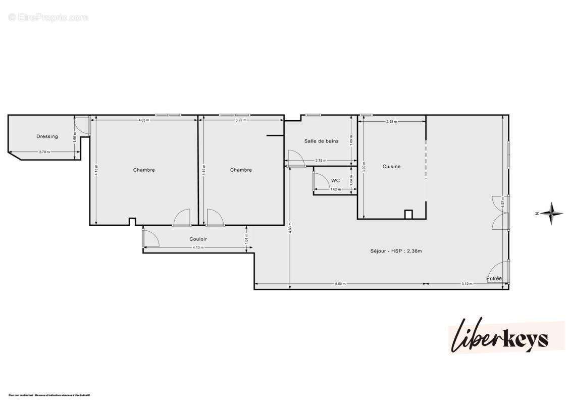
Liberkeys vous propose en exclusivité au Pontet cet appartement d'environ 90 m², offrant la sensation de vivre comme dans une petite maison.

Situé au sein d'une petite copropriété de 2006 parfaitement entretenue, ce bien combine confort, fonctionnalité et emplacement stratégique, à proximité immédiate d'Avignon et de la route de Lyon.

Vous découvrirez un bel espace de vie d'environ 45 m², comprenant une cuisine ouverte, aménagée et équipée, s'ouvrant sur une agréable terrasse prolongée par un jardin privatif, idéal pour profiter des beaux jours et recevoir.

Côté nuit, l'appartement propose deux chambres confortables, dont une avec espace dressing, une salle de bains fonctionnelle ainsi qu'un toilette séparé.

Plusieurs atouts viennent compléter ce bien et renforcer son attractivité, notamment une place de parking privative située dans un garage commun sécurisé au même niveau — un véritable avantage en copropriété — ainsi que la jouissance permanente et exclusive d'une place de parking extérieure, particulièrement pratique au quotidien.

Côté prestations : double vitrage PVC, climatisation réversible, forage..

Son emplacement privilégié permet de rejoindre le centre d'Avignon en seulement 6 minutes à vélo, tout en bénéficiant des commerces de proximité.

Cet appartement représente une belle opportunité, idéale pour des primo-accédants, un couple ou une petite famille à la recherche de tranquillité tout en restant proche de la ville.

Copropriété de 9 lots dont 4 lots d'habitations
Charges de copropriété : 311€ / par an
Taxe foncière : 1023 € par an.
Référence annonce : DOM28996
Prix de vente FAI : 179 500€ (170 000 € hors honoraires – honoraires à la charge du vendeur)

Montant estimé des dépenses annuelles d'énergie pour un usage standard : entre 1340 € et 1870 € par an. Prix moyens des énergies indexés sur l'année 2021 (abonnements compris). Date de réalisation du diagnostic : 22/07/2022

Les informations sur les risques auxquels ce bien est exposé sont disponibles sur le site Géorisques : https://www.georisques.gouv.fr

Ce bien vous plaît ? Contact : Delphine Baise – [Coordonnées masquées] Agent commercial Liberkeys – RSAC Avignon n° 522 572 437
Voir plus

Référence: DOM28996
Bien en copropriété. Nombre de lots : 9. Charges de copropriété : 25 €.
Honoraires à la charge du vendeur.
DPE
A
B
C
D
E
F
G
GES
A
B
C
D
E
F
G
Appartement à LE PONTET
Appartement à LE PONTET
Appartement à LE PONTET
Appartement à LE PONTET
Appartement à LE PONTET
Appartement à LE PONTET
Appartement à LE PONTET
Appartement à LE PONTET
Appartement à LE PONTET
Géorisques

Les informations sur les risques auxquels ce bien est exposé sont disponibles sur le site Géorisques : www.georisques.gouv.fr

Ce site est protégé par hCaptcha Politique de confidentialité et Conditions d’utilisation s’appliquent.

En poursuivant votre navigation sans modifier vos paramètres, vous acceptez l'utilisation de cookies susceptibles de réaliser des statistiques de visite. Cliquez ici pour plus d'informations