Bénéficiez des services de nos partenaires locaux soigneusement sélectionnés
pour vous accompagner dans votre parcours d'achat immobilier

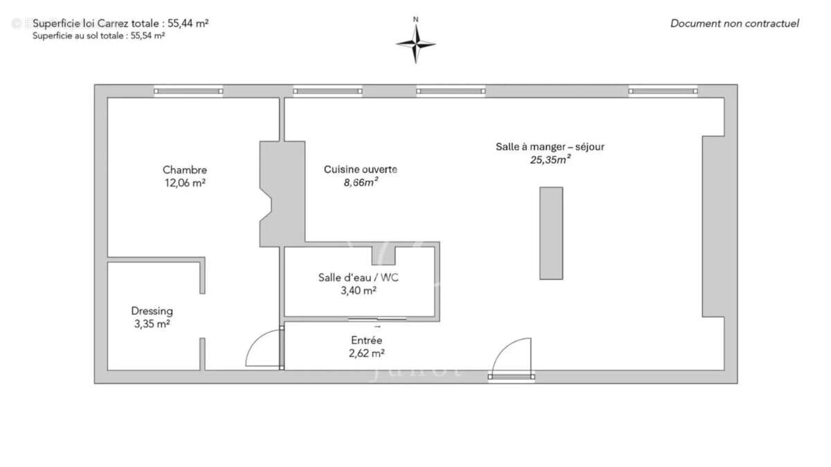
Paris 18e - JULES JOFFRIN - Appartement à vendre - 2 pièces - 55.44m² Carrez - 1 chambre - Étage élevé.

— Paris-18e 75018 —
650 000 €
55 m²
2 pièces
ascenseur

Nos partenaires locaux
Au sein d'une rue calme et d'une copropriété aux parties communes rénovées, un charmant deux pièces de 55,44m² loi Carrez situé au cinquième étage par ascenseur.

Le plan compact comprend un double séjour avec sa cuisine dînatoire intégralement équipée, une chambre avec dressing et une salle de douche avec ses toilettes.

Une cave et un local à vélos complètent ce bien.

Il saura séduire par son emplacement prisé, son étage élevé, sa vue dégagée sur le ciel et son charme de l'ancien préservé avec son parquet et sa cheminée fonctionnelle.

EXCLUSIVITÉ.
Voir plus

Référence: 3460GREGEN/5851JUN
Barème des honoraires
DPE
A
B
C
D
E
F
G
GES
A
B
C
D
E
F
G
Appartement à PARIS-18E
Appartement à PARIS-18E
Appartement à PARIS-18E
Appartement à PARIS-18E
Appartement à PARIS-18E
Appartement à PARIS-18E
Appartement à PARIS-18E
Appartement à PARIS-18E
Appartement à PARIS-18E
Appartement à PARIS-18E
Appartement à PARIS-18E
Appartement à PARIS-18E
Appartement à PARIS-18E
Appartement à PARIS-18E
Appartement à PARIS-18E
Géorisques

Les informations sur les risques auxquels ce bien est exposé sont disponibles sur le site Géorisques : www.georisques.gouv.fr

Ce site est protégé par hCaptcha Politique de confidentialité et Conditions d’utilisation s’appliquent.

En poursuivant votre navigation sans modifier vos paramètres, vous acceptez l'utilisation de cookies susceptibles de réaliser des statistiques de visite. Cliquez ici pour plus d'informations