Bénéficiez des services de nos partenaires locaux soigneusement sélectionnés
pour vous accompagner dans votre parcours d'achat immobilier

Maison 6 pièces à Concarneau

— Concarneau 29900 —
480 000 €
118 m² / 667 m²
6 pièces
jardin

Nos partenaires locaux
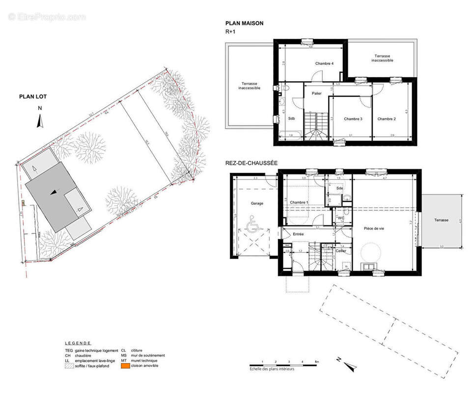
Venez découvrir les Villas Dolmen, un programme de maisons neuves idéalement situé, à proximité du centre-ville. Implantée dans un cadre résidentiel recherché, cette maison individuelle a été conçue pour offrir confort, fonctionnalité et qualité de vie. Elle se compose, au rez-de-chaussée, d'une entrée, d'une belle pièce de vie lumineuse avec cuisine ouverte donnant directement accès à la terrasse et au jardin, d'un cellier, d'une chambre, d'une salle d'eau ainsi qu'un WC indépendants, permettant une véritable vie de plain-pied. A l'étage, un palier dessert trois chambres supplémentaires ainsi qu'une salle de bains avec WC. A l'extérieur, vous profitez d'un jardin privatif, d'une terrasse bien exposée et d'un garage, le tout sur une parcelle agréable. Situées sur les hauteurs du centre-ville, ce bien bénéficie d'un emplacement privilégié, permettant de rejoindre facilement les plages, les commerces et l'ensemble des commodités. Construites selon les normes RE 2020, elle offre d'excellentes performances énergétiques, synonymes de confort au quotidien et d'économies durables. Ce programme neuf bénéficie également de toutes les garanties constructeur, dont la garantie décennale et l'assurance dommages - ouvrage, ainsi que de frais de notaire réduits. Les atouts principaux : Emplacement recherché Accès à pied au centre-ville Maison neuve avec prestations de qualité Vie de plain-pied Distribution moderne et optimisée Belle luminosité Terrasse, jardin et garage Excellente performance énergétique (RE 2020) Garanties constructeur incluses Frais de notaire réduits Un bien idéal pour profiter d'un cadre de vie agréable, entre confort moderne et proximité du littoral. Anthony Charlot (EI) Agent Commercial - Numéro RSAC : - .
Voir plus

Honoraires à la charge du vendeur.
Barème des honoraires
Maison à CONCARNEAU
Maison à CONCARNEAU
Maison à CONCARNEAU
Maison à CONCARNEAU
Géorisques

Les informations sur les risques auxquels ce bien est exposé sont disponibles sur le site Géorisques : www.georisques.gouv.fr

Ce site est protégé par hCaptcha Politique de confidentialité et Conditions d’utilisation s’appliquent.

En poursuivant votre navigation sans modifier vos paramètres, vous acceptez l'utilisation de cookies susceptibles de réaliser des statistiques de visite. Cliquez ici pour plus d'informations