Superbe appartement T3 lumineux - Proche du CHU - Fort-de-france

— Fort-De-France 97200 —
278 000 €
66 m²
3 pièces

FORT-DE-FRANCE – Proche CHU- Secteur Acajou
Rare sur le secteur : T3 lumineux avec grande varangue, idéalement situé à proximité du CHU.
Un appartement pensé pour allier confort de vie et rentabilité locative immédiate.
Volumes optimisés, extérieur agréable et prestations modernes dans une résidence récente
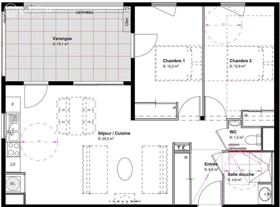
A vendre Magnifique T3 avec belle terrasse – 88,30 m² au total – Secteur CHU
Situé à Fort-de-France, dans le secteur recherché de La Meynard, à proximité immédiate du CHU et des commodités, découvrez ce T3 situé au 2ème étage (R+2) d’une résidence récente came et sécurisée

Surface habitable: 66,20 m²
Surface totale : 88,30 m²
Séjour lumineux
Cuisine ouverte
2 chambres climatisées
Salle d’eau
WC indépendant
Terrasse spacieuse
2 places de stationnement extérieur
Appartement fonctionnel, bien agencé et agréable à vivre.

Proximité immédiate du CHU de La Meynard
Accès rapide aux grands axes
Commerces, écoles et services à proximité
Secteur dynamique avec forte demande locative.
Atouts investissement
Résidence Neuve
Bien prêt à louer
Bonne rentabilité locative possible
Secteur recherché
Idéal pour un investissement ou une résidence principale.
Fiscalité
Possibilité d’optimisation fiscale selon le profil acquéreur (investissement locatif).
En résumé
Emplacement stratégique
Appartement récent
Extérieur confortable
Potentiel locatif intéressantDétail du
Prix de vente : 278000 HAI ( honoraires inclus). Prix ajustable selon la qualité du projet.
Les honoraires sont à la charge du vendeur.

Ce bien vous est présenté par Lory Lamaty , agent commercial de la SAS JMG _YOULIVE -joignable au +596 696 459 133, ou par e-mail :
[Coordonnées masquées] – Référence du bien 2896-51-972-D204
Détail du Prix 278000 HAI ( honoraires inclus). Prix ajustable selon la qualité du projet.
Les honoraires sont à la charge du vendeur.

Les informations sur les risques auxquels ce bien est exposé sont disponibles sur le site Géorisques : www.georisques.gouv.fr
Voir plus

Référence: 2896
Barème des honoraires
Appartement à FORT-DE-FRANCE
Appartement à FORT-DE-FRANCE
Appartement à FORT-DE-FRANCE
Appartement à FORT-DE-FRANCE
Appartement à FORT-DE-FRANCE
Géorisques

Les informations sur les risques auxquels ce bien est exposé sont disponibles sur le site Géorisques : www.georisques.gouv.fr

Ce site est protégé par hCaptcha Politique de confidentialité et Conditions d’utilisation s’appliquent.

En poursuivant votre navigation sans modifier vos paramètres, vous acceptez l'utilisation de cookies susceptibles de réaliser des statistiques de visite. Cliquez ici pour plus d'informations