Terrain 1236 m² à Lormaison

— Lormaison 60110 —
97 200 €
1 236 m²

Proche Méru 5mn (lormaison) - Autoroute A16 à 8 minutes.
Mon nom est GOLFY, je suis un magnifique terrain borné, non viabilisé, et PLAT de 1200 m² et SANS VIS À VIS d'environ d'une façade de 14 m² en lot arrière.
G2 réalisée
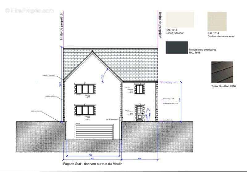
Un projet de construction avec sous-sol total a déjà été réalisé par un architecte.
A vos téléphones : [Coordonnées masquées]

Les informations sur les risques auxquels ce bien est exposé sont disponibles sur le site Géorisques : www.georisques.gouv.fr
Prix de vente : 97 200 ¤
Honoraires charge vendeur

Contactez votre conseiller SAFTI : Sandrine MARTINEZ, Tél. : [Coordonnées masquées], E-mail : [Coordonnées masquées] - EI - Agent commercial immatriculé au RSAC de Beauvais sous le numéro 938307899.Informations LOI ALUR : Honoraires charge vendeur. (gedeon_26118_32143431)
Voir plus

Référence: 1334415
Honoraires à la charge du vendeur.
Barème des honoraires
Photo 1 - Terrain à LORMAISON
Photo 1
Photo 2 - Terrain à LORMAISON
Photo 2
Géorisques

Les informations sur les risques auxquels ce bien est exposé sont disponibles sur le site Géorisques : www.georisques.gouv.fr

Ce site est protégé par hCaptcha Politique de confidentialité et Conditions d’utilisation s’appliquent.

En poursuivant votre navigation sans modifier vos paramètres, vous acceptez l'utilisation de cookies susceptibles de réaliser des statistiques de visite. Cliquez ici pour plus d'informations