Bénéficiez des services de nos partenaires locaux soigneusement sélectionnés
pour vous accompagner dans votre parcours d'achat immobilier

Carcassonne T4 traversant avec 2 balcons et 1 garage

— Carcassonne 11000 —
102 000 €
83 m²
4 pièces
parkingbalcon/terrasse

Nos partenaires locaux
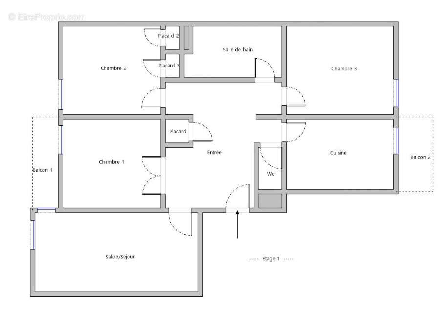
Dans un quartier agréable et proche du centre ville, dans une résidence calme et sécurisée, venez découvrir ce très agréable appartement traversant de type 4 avec ses deux balcons exposés est/ouest et son garage de plus 17m2.
L'appartement se situe au premier étage de la résidence (sans asenceur) et se compose comme suit: une entrée, une pièce de vie donnant sur un balcon, une cuisine séparée donnant sur un autre balcon, un WC, un placard, une salle de bain et 3 chambres dont une avec placard.
Cet appartement est équipé d'huisseries en P.V.C double vitrage et de volet bois.
Prévoir un rafraichissement de la cuisine et de la salle de bain.
Montant des charges de copropriété: 1340 euros/an.
Chauffage via chaudière (gaz de ville).
Taxe foncière: 2182 euros.
A venir voir rapidement!
Voir plus

Référence: 5851
Bien en copropriété. Nombre de lots : 120.
Barème des honoraires
DPE
A
B
C
D
E
F
G
GES
A
B
C
D
E
F
G
Appartement à CARCASSONNE
Appartement à CARCASSONNE
Appartement à CARCASSONNE
Appartement à CARCASSONNE
Appartement à CARCASSONNE
Appartement à CARCASSONNE
Appartement à CARCASSONNE
Appartement à CARCASSONNE
Appartement à CARCASSONNE
Appartement à CARCASSONNE
Appartement à CARCASSONNE
Appartement à CARCASSONNE
Appartement à CARCASSONNE
Appartement à CARCASSONNE
Appartement à CARCASSONNE
Géorisques

Les informations sur les risques auxquels ce bien est exposé sont disponibles sur le site Géorisques : www.georisques.gouv.fr

Ce site est protégé par hCaptcha Politique de confidentialité et Conditions d’utilisation s’appliquent.

En poursuivant votre navigation sans modifier vos paramètres, vous acceptez l'utilisation de cookies susceptibles de réaliser des statistiques de visite. Cliquez ici pour plus d'informations