Bénéficiez des services de nos partenaires locaux soigneusement sélectionnés
pour vous accompagner dans votre parcours d'achat immobilier

Maison 86 m² à La Gaude

— La Gaude 06610 —
524 000 €
86 m²
4 pièces
parking

Nos partenaires locaux
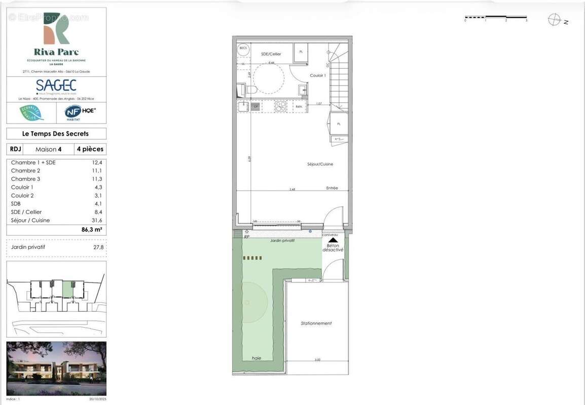
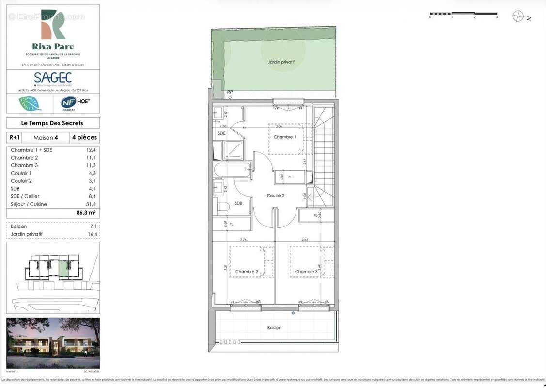
Iad France - Antoine Lapenna ([Coordonnées masquées]) vous propose : LA GAUDE - 4 PIECES DE 86 m² environ EN RDJ + R+1 AVEC 3 CHAMBRES, UN SÉJOUR / CUISINE AMÉRICAINE DE 32 m² environ AVEC VUE DEGAGEE SUR LA NATURE ET COMPRENANT 2 JARDINS PRIVATIFS, BALCON, UNE CAVE, UN PARKING EXTÉRIEUR A PROXIMITÉ IMMÉDIATE ET UN BOX DE GARAGE FERMÉ EN SOUS-SOL

Dans un environnement préservé, découvrez cet appartement d'exception aux volumes généreux, offrant un art de vivre raffiné et tourné vers la nature.

Au rez-de-jardin, un superbe séjour baigné de lumière, prolongé d'une élégante cuisine américaine, s'ouvre sur un jardin privatif de 27 m² environ.
Un espace extérieur rare, propice à des moments de détente en toute intimité.

À l'étage, l'espace nuit se compose de trois chambres, dont une magnifique suite parentale avec salle d'eau privative.
Une salle de bain indépendante vient compléter ce niveau. Vous profiterez également d'un jardin privatif de 16 m² environ ainsi que d'un balcon de 7 m² environ, offrant une continuité naturelle et un ensoleillement optimal.

La résidence, entièrement sécurisée, bénéficie d'un stationnement privatif à proximité immédiate, garantissant sérénité et confort au quotidien.

Harmonie des volumes, prestations de qualité, luminosité et vue panoramique sur la nature : cet appartement incarne un lieu de vie rare, où bien-être et élégance se rejoignent

Honoraires d'agence à la charge du vendeur. Bien non soumis au DPE. Les informations sur les risques auxquels ce bien est exposé sont disponibles sur le site Géorisques : www.georisques.gouv.fr. La présente annonce immobilière a été rédigée sous la responsabilité éditoriale de M. Antoine Lapenna EI (ID 88114), mandataire indépendant en immobilier (sans détention de fonds), agent commercial de la SAS I@D France immatriculé au RSAC de grasse sous le numéro 951416601, titulaire de la carte de démarchage immobilier pour le compte de la société I@D France SAS.
Retrouvez tous nos biens sur notre site internet. www.iadfrance.fr.Informations LOI ALUR : Honoraires charge vendeur. (gedeon_6727_32812188)
Voir plus

Référence: 1870831-3
Honoraires à la charge du vendeur.
Barème des honoraires
Photo 1 - Maison à LA GAUDE
Photo 1
Photo 2 - Maison à LA GAUDE
Photo 2
Photo 3 - Maison à LA GAUDE
Photo 3
Photo 4 - Maison à LA GAUDE
Photo 4
Photo 5 - Maison à LA GAUDE
Photo 5
Photo 6 - Maison à LA GAUDE
Photo 6
Photo 7 - Maison à LA GAUDE
Photo 7
Photo 8 - Maison à LA GAUDE
Photo 8
Géorisques

Les informations sur les risques auxquels ce bien est exposé sont disponibles sur le site Géorisques : www.georisques.gouv.fr

Ce site est protégé par hCaptcha Politique de confidentialité et Conditions d’utilisation s’appliquent.

En poursuivant votre navigation sans modifier vos paramètres, vous acceptez l'utilisation de cookies susceptibles de réaliser des statistiques de visite. Cliquez ici pour plus d'informations