Bénéficiez des services de nos partenaires locaux soigneusement sélectionnés
pour vous accompagner dans votre parcours d'achat immobilier

Villa t5 avec studio garage et mazet sur un terrain de 2657 m2 à nimes

— Nimes 30000 —
475 000 €
138 m² / 2 657 m²
5 pièces
parkingbalcon/terrassejardin

Nos partenaires locaux
Entre la route d'Alès et le Bois des Espeisses.

Dans un environnement privilégié, entre les secteurs recherchés entre la route d'alès et le bois des Espeises, découvrez cette villa indépendante implantée sur un superbe terrain arboré de 2 657 m2, offrant calme, intimité et qualité de vie.

Exposée plein sud, la maison bénéficie d’une belle luminosité et s’articule autour d’un vaste espace de vie comprenant un grand salon / séjour avec cuisine ouverte, le tout prolongé par une terrasse permettant de profiter pleinement du jardin.

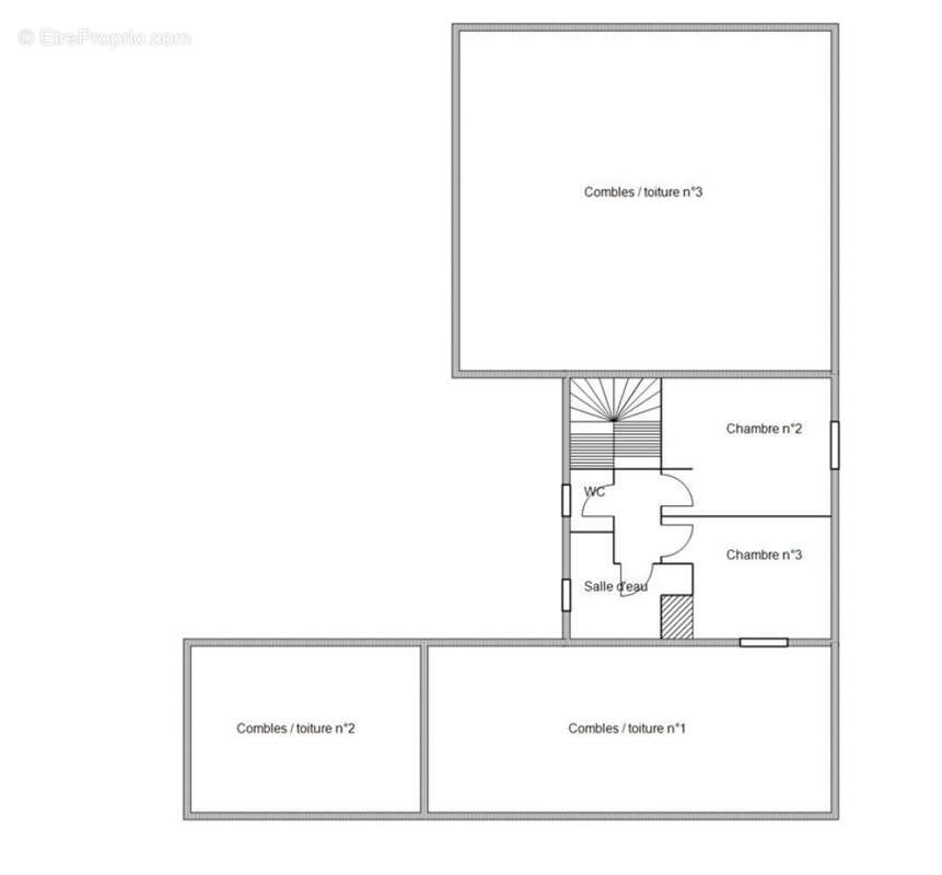
Le rez-de-chaussée accueille une suite parentale avec salle d’eau, offrant un véritable espace nuit de plain-pied. À l’étage, deux chambres complètent l’espace nuit ainsi qu’une salle de bain et un WC indépendant.

La maison dispose également d’une loggia intégrée, apportant un espace supplémentaire agréable à vivre en toute saison.

En complément, la propriété propose de nombreux atouts :

Un mazet attenant comprenant une chambre, une cuisine (idéale en cuisine d’été) et une salle d’eau

Un studio indépendant de 26 m2, parfait pour recevoir ou générer un revenu locatif

Un garage de 26 m2

Le vaste terrain arboré constitue un véritable écrin de verdure, rare sur le secteur, et offre de nombreuses possibilités d’aménagement.

Une propriété complète, idéale pour une famille à la recherche de confort, d’espace et de potentiel.

Honoraires charge vendeur - Les informations sur les risques auxquels ce bien est exposé sont disponibles sur le site Géorisques : www.géorisques.gouv.fr
Voir plus

Référence: 2540
Honoraires à la charge du vendeur.
Barème des honoraires
DPE
A
B
C
D
E
F
G
GES
A
B
C
D
E
F
G
Maison à NIMES
Maison à NIMES
Maison à NIMES
Maison à NIMES
Maison à NIMES
Maison à NIMES
Maison à NIMES
Maison à NIMES
Maison à NIMES
Maison à NIMES
Maison à NIMES
Maison à NIMES
Maison à NIMES
Maison à NIMES
Maison à NIMES
Maison à NIMES
Maison à NIMES
Maison à NIMES
Maison à NIMES
Maison à NIMES
Géorisques

Les informations sur les risques auxquels ce bien est exposé sont disponibles sur le site Géorisques : www.georisques.gouv.fr

Ce site est protégé par hCaptcha Politique de confidentialité et Conditions d’utilisation s’appliquent.

En poursuivant votre navigation sans modifier vos paramètres, vous acceptez l'utilisation de cookies susceptibles de réaliser des statistiques de visite. Cliquez ici pour plus d'informations