Bénéficiez des services de nos partenaires locaux soigneusement sélectionnés
pour vous accompagner dans votre parcours d'achat immobilier

Maison 135m² à plaisir

— Plaisir 78370 —
629 000 €
135 m² / 371 m²
8 pièces
parkingjardin

Nos partenaires locaux
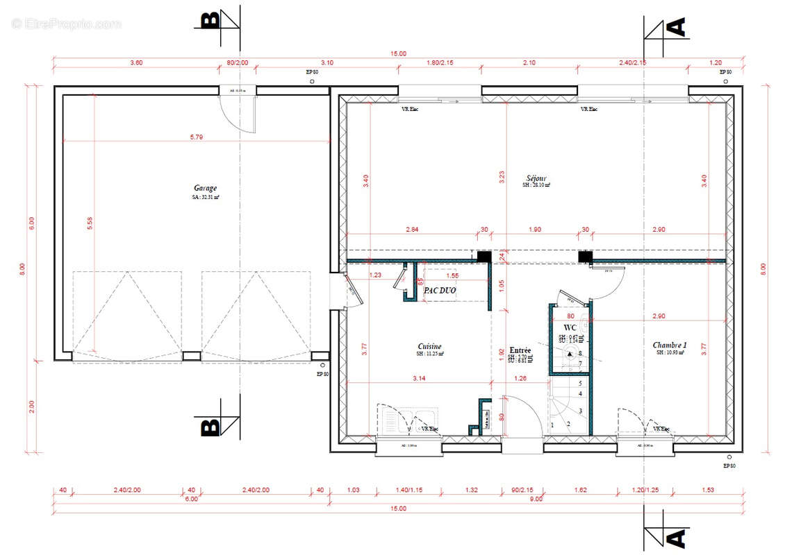
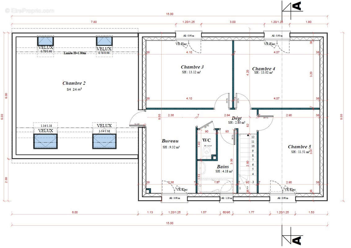
MAISON DE 2025 A VENDRE A PLAISIR - LES GÂTINES - Vente en VEFA - Dans le quartier recherché des Gâtines, proche écoles, commerces, bus, accès N12 et forêt, belle MAISON INDIVIDUELLE aux normes RT 2012 comprenant au rez-de-chaussée : entrée, cuisine, séjour double donnant accès à un jardin PLEIN OUEST, une chambre et wc ; à l'étage : 4 chambres, bureau, salle de douches, wc et dégagement. Garage double. Parking. FRAIS DE NOTAIRE REDUITS, FAIRE VITE ! DPE en cours
L'Etat des Risques et Pollution peut être consulté sur https://www.georisques.gouv.fr
Voir plus

Référence: 5975
DPE
A
B
C
D
E
F
G
Maison à PLAISIR
Maison à PLAISIR
Maison à PLAISIR
Géorisques

Les informations sur les risques auxquels ce bien est exposé sont disponibles sur le site Géorisques : www.georisques.gouv.fr

Ce site est protégé par hCaptcha Politique de confidentialité et Conditions d’utilisation s’appliquent.

En poursuivant votre navigation sans modifier vos paramètres, vous acceptez l'utilisation de cookies susceptibles de réaliser des statistiques de visite. Cliquez ici pour plus d'informations