Bénéficiez des services de nos partenaires locaux soigneusement sélectionnés
pour vous accompagner dans votre parcours d'achat immobilier

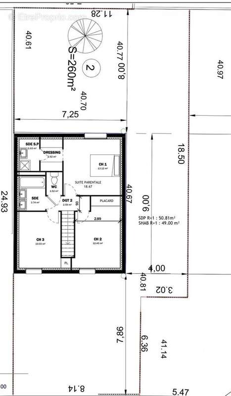
Terrain 260 m² à Savigny-Sur-Orge

— Savigny-Sur-Orge 91600 —
156 500 €
260 m²

Nos partenaires locaux
Iad France - Claire Pardo vous propose : Opportunité rare, terrain de 260 m² à 20 minutes de Paris. Libre constructeur, avec autorisation de permis en cours, Situé au centre ville de Savigny, au pied du RER, vous cherchez un terrain pour réaliser votre projet de construction sur mesure, ce terrain à bâtir offre un environnement dynamique à seulement quelques kilomètres de Paris. PRESENTATION DU PROJET : Le projet est entièrement à usage de logement avec une surface plancher totale de 88.24 m². L'emprise au sol de la construction projetée est de 64.8 m². Les espaces végétalisés projetés sont des espaces verts de pleine terre d'une surface totale de 172 m²Le bâtiment sera en R + 1 avec un comble non aménageable hauteur maximale de 6.23 m (gouttière) et 9.00m au faîtage mesurée à partir du niveau du sol naturel. Honoraires d'agence à la charge du vendeur. Bien non soumis au DPE. Les informations sur les risques auxquels ce bien est exposé, y compris l'obligation légale de débroussaillement, sont disponibles sur le site Géorisques : http://www.georisques.gouv.fr.La présente annonce immobilière a été rédigée sous la responsabilité éditoriale de Mme Claire Pardo mandataire indépendant en immobilier (sans détention de fonds), agent commercial de la SAS I@D France immatriculé au RSAC de Evry sous le numéro 903118024, titulaire de la carte de démarchage immobilier pour le compte de la société I@D France SAS.Informations LOI ALUR : Honoraires charge vendeur. (gedeon_6727_31903081)
Voir plus

Référence: 1847567
Honoraires à la charge du vendeur.
Barème des honoraires
Photo 1 - Terrain à SAVIGNY-SUR-ORGE
Photo 1
Photo 2 - Terrain à SAVIGNY-SUR-ORGE
Photo 2
Photo 3 - Terrain à SAVIGNY-SUR-ORGE
Photo 3
Photo 4 - Terrain à SAVIGNY-SUR-ORGE
Photo 4
Photo 5 - Terrain à SAVIGNY-SUR-ORGE
Photo 5
Photo 6 - Terrain à SAVIGNY-SUR-ORGE
Photo 6
Photo 7 - Terrain à SAVIGNY-SUR-ORGE
Photo 7
Photo 8 - Terrain à SAVIGNY-SUR-ORGE
Photo 8
Géorisques

Les informations sur les risques auxquels ce bien est exposé sont disponibles sur le site Géorisques : www.georisques.gouv.fr

Ce site est protégé par hCaptcha Politique de confidentialité et Conditions d’utilisation s’appliquent.

En poursuivant votre navigation sans modifier vos paramètres, vous acceptez l'utilisation de cookies susceptibles de réaliser des statistiques de visite. Cliquez ici pour plus d'informations