Propriété avec vue dégagée à Sotta, commodités à pied et cadre paisible

— Sotta 20146 —
799 000 €
239 m² / 2 000 m²
7 pièces
parkingbalcon/terrassejardinpiscine

Située dans un environnement calme à quelques pas des commodités du village de Sotta, cette propriété rare à la vente offre un cadre de vie idéal alliant confort, intimité et polyvalence. Implantée sur un terrain arboré et entretenu de 2 000 m2, elle se compose d’une maison principale, d’un appartement T2, d’un studio indépendant ainsi que d’une salle de sport, avec de belles prestations et une vue dégagée sur la cammpagne.
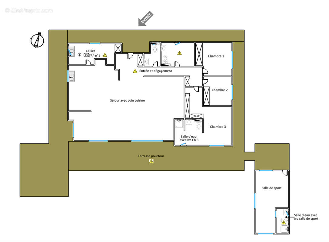
La maison principale développe une surface habitable de 158 m2. Elle s’ouvre sur un vaste salon-séjour lumineux avec cheminée à insert avec répartiteur de chaleur, prolongé par une terrasse et un agréable pool house avec une très belle vue dégagée sur la nature environnante. La cuisine, ouverte sur la pièce de vie, est entièrement équipée, elle est accompagnée d’un cellier fonctionnel. L’espace nuit se compose de deux chambres, d’une salle de bain, d’un WC séparé, ainsi que d’une suite parentale bénéficiant de sa propre salle d’eau et d’un dressing. Toutes les pièces sont dotées de la climatisation gainable pour un confort optimal tout au long de l’année et disposent d'un accès vers l'extérieur.
Côté extérieur, la propriété dispose d’un portail électrique, d’un système d’arrosage automatique raccordé au réseau de l'office hydraulique et d’une piscine hors-sol traitée au chlore, idéale pour profiter des beaux jours en toute tranquillité. L’ensemble est parfaitement entretenu et pensé pour une vie facile.
Dans le vide sanitaire, ont été aménagés un appartement T2 de 41,21 m2 comprenant un salon avec cuisine ouverte, un bureau, une chambre et une salle d’eau avec douche, lavabo et WC, ainsi qu’un studio de 24,64 m2 composé d’un séjour avec cuisine ouverte et d’une salle d’eau. Ces deux logements ne disposent pas de système de chauffage, mais peuvent être valorisés pour un usage ponctuel ou locatif.
Une unité indépendante de 18 m2 complète ce bien, équipée d'une salle d'eau avec WC et douche, offrant un espace supplémentaire selon les besoins : sport, télétravail, chambre indépendante, atelier ou stockage.
Cette propriété est idéale pour une grande famille, et permet de générer un complément de revenus grâce à un investissement locatif. Sa configuration, son emplacement privilégié et ses prestations en font une opportunité rare dans le secteur recherché de Sotta, à seulement 10 minutes de Porto-Vecchio, 20 min de l'aéroport de Figari, 15 min des plages de Santa Giulia.
Pour toute information complémentaire ou pour organiser une visite, contactez-nous.
Voir plus

Référence: 162
Honoraires d'agence de 6.37% à la charge de l'acquéreur
Barème des honoraires
DPE
A
B
C
D
E
F
G
GES
A
B
C
D
E
F
G
Maison à SOTTA
Maison à SOTTA
Maison à SOTTA
Maison à SOTTA
Maison à SOTTA
Maison à SOTTA
Maison à SOTTA
Maison à SOTTA
Maison à SOTTA
Maison à SOTTA
Maison à SOTTA
Maison à SOTTA
Maison à SOTTA
Maison à SOTTA
Maison à SOTTA
Maison à SOTTA
Maison à SOTTA
Maison à SOTTA
Maison à SOTTA
Maison à SOTTA
Maison à SOTTA
Maison à SOTTA
Maison à SOTTA
Maison à SOTTA
Maison à SOTTA
Maison à SOTTA
Maison à SOTTA
Maison à SOTTA
Maison à SOTTA
Maison à SOTTA
Géorisques

Les informations sur les risques auxquels ce bien est exposé sont disponibles sur le site Géorisques : www.georisques.gouv.fr

Ce site est protégé par hCaptcha Politique de confidentialité et Conditions d’utilisation s’appliquent.

En poursuivant votre navigation sans modifier vos paramètres, vous acceptez l'utilisation de cookies susceptibles de réaliser des statistiques de visite. Cliquez ici pour plus d'informations