Bénéficiez des services de nos partenaires locaux soigneusement sélectionnés
pour vous accompagner dans votre parcours d'achat immobilier

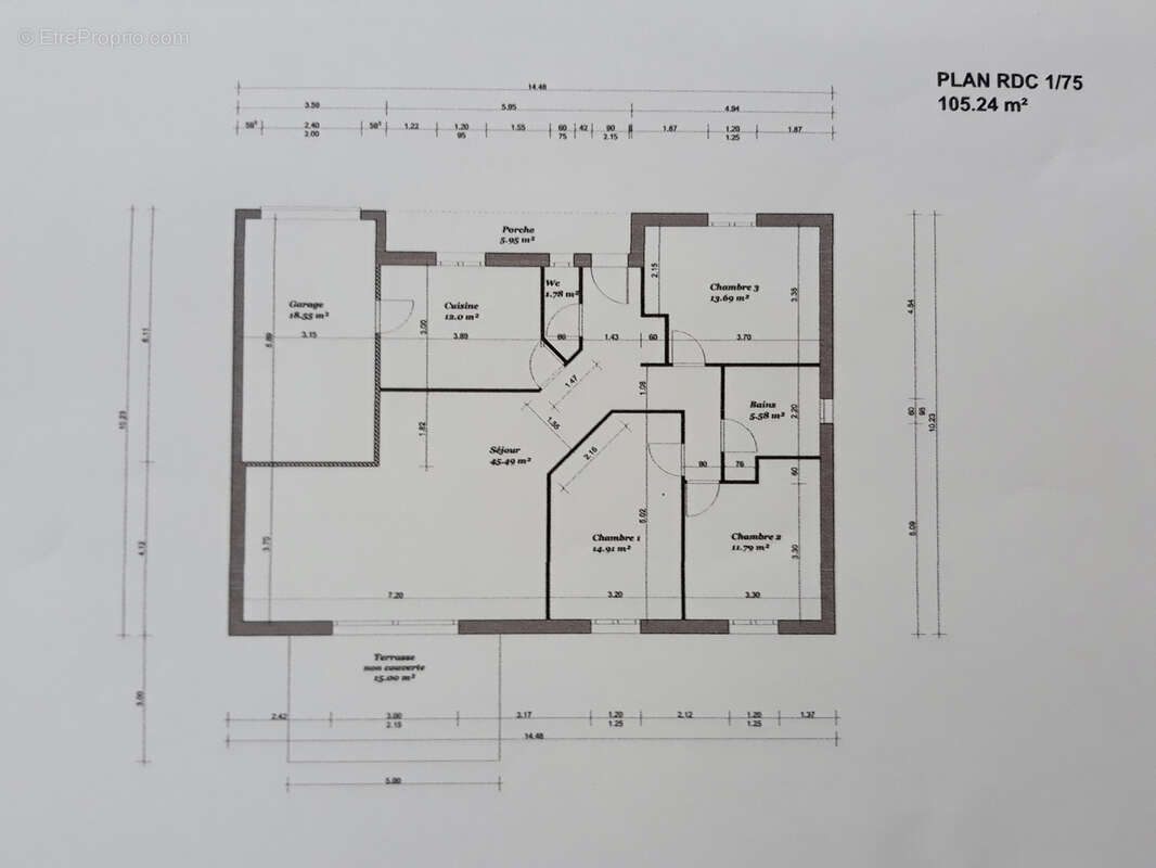
Maison T4 neuve de plain pied d'environ 105 m2 sur 1500m2

— Fonsorbes 31470 —
310 000 €
105 m² / 1 500 m²
4 pièces
parkingbalcon/terrassejardin

Nos partenaires locaux
Située sur la commune de Fonsorbes, quartier Ayguolounguo à seulement 5 min du centre-ville, mais aussi de Frouzins et de Plaisance du Touch, venez découvrir cette maison neuve T4 avec garage et jardin.
L'entrée dessert une agréable et lumineuse pièce à vivre climatisée avec cuisine ouverte d'environ 55 m2 et donnant accès à une belle terrasse de 15m2 sans vis-à-vis.
Le coin nuit comprend trois belles chambres avec espace placard, une salle d'eau avec douche et double vasque ainsi que des toilettes séparées.
Enfin, un garage complète le bâti et le tout est implanté sur une parcelle d'environ 1500m2.
Les quelques travaux à terminer seront réalisés avant l'acte authentique.
Une réelle opportunité à saisir rapidement !
Voir plus

Honoraires d'agence de 5.5% à la charge de l'acquéreur
Barème des honoraires
GES
A
B
C
D
E
F
G
Maison à FONSORBES
Maison à FONSORBES
Maison à FONSORBES
Maison à FONSORBES
Maison à FONSORBES
Maison à FONSORBES
Maison à FONSORBES
Maison à FONSORBES
Maison à FONSORBES
Maison à FONSORBES
Maison à FONSORBES
Maison à FONSORBES
Géorisques

Les informations sur les risques auxquels ce bien est exposé sont disponibles sur le site Géorisques : www.georisques.gouv.fr

Ce site est protégé par hCaptcha Politique de confidentialité et Conditions d’utilisation s’appliquent.

En poursuivant votre navigation sans modifier vos paramètres, vous acceptez l'utilisation de cookies susceptibles de réaliser des statistiques de visite. Cliquez ici pour plus d'informations