Triplex excellent état avec terrasse - 183 m² - Suresnes

— Suresnes 92150 —
1 400 000 €
183 m²
5 pièces
parkingbalcon/terrasse

Découvrez ce triplex remarquable de 183 m², situé dans un immeuble de charme construit en 1930, au centre de Suresnes, à proximité immédiate de Puteaux. Ce bien rare attire par ses beaux volumes et son agencement optimisé, offrant un environnement de vie à la fois spacieux et élégant.

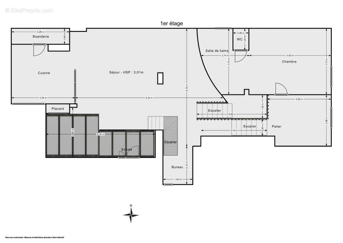
Dès l'entrée, une verrière munie de stores thermiques motorisés inonde de lumière un grand séjour de 53 m². Celui-ci communique avec une cuisine contemporaine, entièrement aménagée et rénovée en 2022, parfaite pour les passionnés de cuisine. Un coin bureau intégré complète cet espace, idéal pour le travail à domicile. Le niveau inférieur comprend deux chambres, dont une de 17 m² avec rangement intégré, ainsi qu'une salle d'eau avec WC.

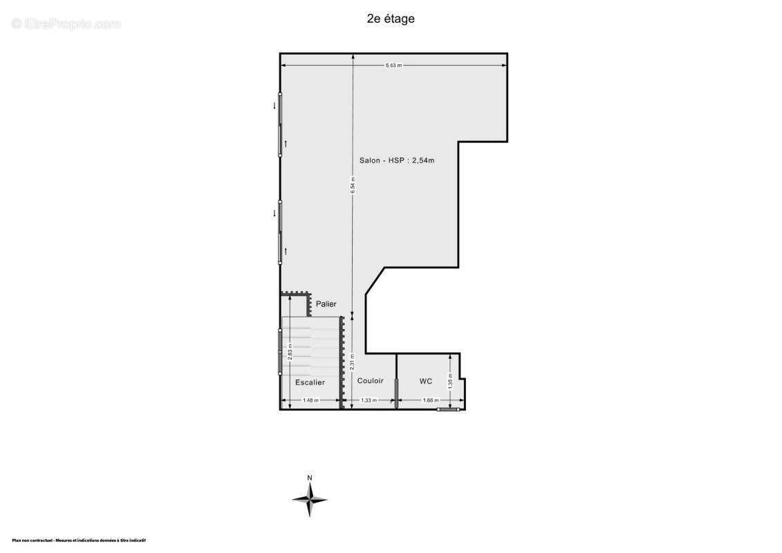
Le rez-de-chaussée surélevé est consacré à une suite parentale, équipée d'un dressing récemment rénové, d'une salle de bain et de toilettes séparées. Au dernier niveau, un salon de 31 m² donne accès à une terrasse privative de 26 m², véritable havre de paix pour profiter des journées ensoleillées. Un WC indépendant vient compléter cet étage.

Ce bien rare est également accompagné d'une cave de 4 m² ainsi que d'une place de stationnement située dans une copropriété voisine.

Implanté dans un secteur prisé, cet appartement se trouve à seulement 10 minutes à pied de l'île de Puteaux et à 10 minutes en voiture du Mont-Valérien. Les transports, incluant le tramway T2 ainsi que les lignes L et U, sont accessibles en 10 minutes à pied, facilitant les déplacements quotidiens.

Caractéristiques techniques

Surface : 183 m²
Nombre de pièces : 5
Nombre de chambres : 3
Année de construction : 1930
Chauffage : électrique individuel (chauffage au sol – gaz uniquement dans la grande pièce)
Charges : 226 € / mois
Taxe foncière : 2 023 €
DPE : B
Terrasse : 26 m²
Cave : 4 m²
Parking : 1 place

Mentions légales :

Les informations communiquées dans cette annonce sont fournies à titre indicatif et n'ont pas de valeur contractuelle. Les acquéreurs sont invités à effectuer toutes les vérifications nécessaires (consultation des actes, mesures de surface, contrôles d'urbanisme) et à faire appel à des professionnels pour toute expertise technique ou conseil juridique. Pour les données officielles relatives aux risques, rendez-vous sur www.georisques.gouv.fr
.

Pour toute demande, contactez Zefir au [Coordonnées masquées].
Voir plus

Référence: 3e338232-e16d-4988-a3f5-6f6c93
Bien en copropriété. Charges de copropriété : 226 €.
Honoraires à la charge du vendeur.
DPE
A
B
C
D
E
F
G
GES
A
B
C
D
E
F
G
Maison à SURESNES
Maison à SURESNES
Maison à SURESNES
Maison à SURESNES
Maison à SURESNES
Maison à SURESNES
Maison à SURESNES
Maison à SURESNES
Maison à SURESNES
Maison à SURESNES
Maison à SURESNES
Maison à SURESNES
Maison à SURESNES
Maison à SURESNES
Maison à SURESNES
Maison à SURESNES
Maison à SURESNES
Maison à SURESNES
Maison à SURESNES
Maison à SURESNES
Maison à SURESNES
Maison à SURESNES
Maison à SURESNES
Maison à SURESNES
Maison à SURESNES
Maison à SURESNES
Maison à SURESNES
Géorisques

Les informations sur les risques auxquels ce bien est exposé sont disponibles sur le site Géorisques : www.georisques.gouv.fr

Ce site est protégé par hCaptcha Politique de confidentialité et Conditions d’utilisation s’appliquent.

En poursuivant votre navigation sans modifier vos paramètres, vous acceptez l'utilisation de cookies susceptibles de réaliser des statistiques de visite. Cliquez ici pour plus d'informations