Bénéficiez des services de nos partenaires locaux soigneusement sélectionnés
pour vous accompagner dans votre parcours d'achat immobilier

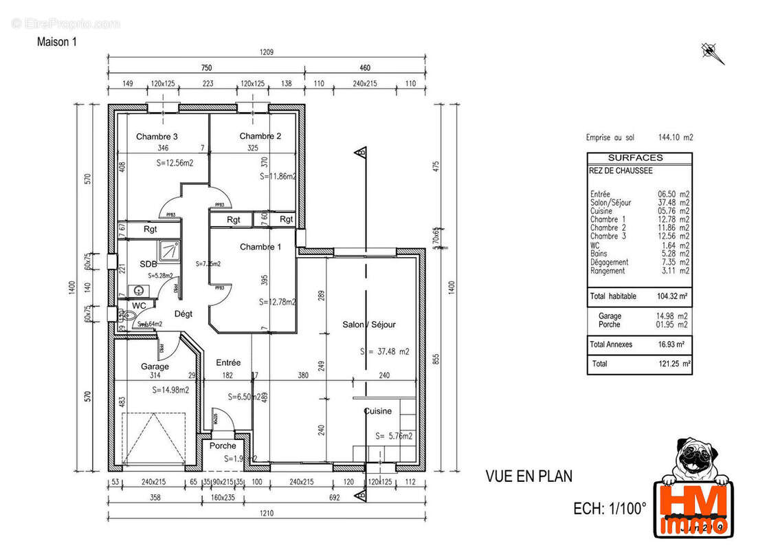
Maison 104 m² à Nexon

— Nexon 87800 —
225 000 €
104 m² / 1 000 m²
5 pièces
jardin

Nos partenaires locaux
HM IMMO- Lola vous propose :
Située dans le village de Nexon, à proximité des commodités, cette maison contemporaine
en cours de finalisation et offrant de belles prestations.
Elle se compose de trois chambres, d'une grande pièce de vie lumineuse, d'un garage chauffé et d'une terrasse en bois pour profiter des beaux jours. Vous disposerez d'une belle douche à l'italienne et de WC séparé suspendu. Le chauffage et l'eau chaude sont assurés par une pompe à chaleur, garantissant confort et économies d'énergie.
L'assainissement est individuel. Pompe à chaleur(chauffage au sol ) et
clim.
Plan disponible avec les mesures
du bien dans les photos.
Le tout est implanté sur un terrain d'environ 1000 m², offrant un bel espace extérieur à créer selon vos goûts.
Si vous vous décidez rapidement, vous pourrez, peut être, choisir la cuisine selon vos envies !
Voir plus

Référence: AG1082-5865
Honoraires d'agence de 6.08% à la charge de l'acquéreur
DPE
A
B
C
D
E
F
G
GES
A
B
C
D
E
F
G
Maison à NEXON
Maison à NEXON
Maison à NEXON
Maison à NEXON
Maison à NEXON
Maison à NEXON
Maison à NEXON
Maison à NEXON
Maison à NEXON
Géorisques

Les informations sur les risques auxquels ce bien est exposé sont disponibles sur le site Géorisques : www.georisques.gouv.fr

Ce site est protégé par hCaptcha Politique de confidentialité et Conditions d’utilisation s’appliquent.

En poursuivant votre navigation sans modifier vos paramètres, vous acceptez l'utilisation de cookies susceptibles de réaliser des statistiques de visite. Cliquez ici pour plus d'informations