Appartement 61 m² à Chateaubourg

— Chateaubourg 35220 —
221 000 €
61 m²
3 pièces
parkingbalcon/terrasseascenseuraccès handicapé

L'agence 'MON BIEN A LA MER', spécialiste de l'immobilier sur le Grand Ouest, sélectionne auprès des promoteurs les meilleures opérations aux mêmes prix, sans commission d'agence. Bénéficiez de notre expertise indépendante, et de nos services (aide aux plans, maquette, drone, visite virtuelles). Nous vous présentons ce bien :

Jolie résidence neuve achevée, en frais de notaire réduits, prête à habiter.
5 min en voiture de la Gare de CHATEAUBOURG, entre 3 et 7 des commerces, école, collège.

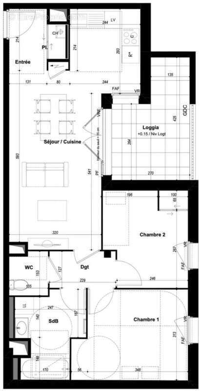
Ce T3 est situé en retrait de la route, très calme :
- Séjour/entrée 29m2 donnant sur une belle loggia de 9,31m2
- Deux chambres 11,75-9,28m2
- Salle de bains meuble vasque sèche serviette
- wc séparé
- Placards
- Parking sous sol inclus.

Nous Consulter

Honoraires à la charge du vendeur. Classe énergie C, Classe climat C Montant moyen estimé des dépenses annuelles d'énergie pour un usage standard, établi à partir des prix de l'énergie de l'année 2023 : entre 474.00 et 651.00 €. Les informations sur les risques auxquels ce bien est exposé sont disponibles sur le site Géorisques : georisques.gouv.fr.

Votre conseiller MON BIEN A LA MER : Gérant - .fr MON BIEN A LA MER
Carte T CPI 22[Coordonnées masquées]25 040
RCP ACM IARD B1 7025278
Voir plus

Référence: VA6540-BIENALAMER
Honoraires à la charge du vendeur.
Barème des honoraires
DPE
A
B
C
D
E
F
G
GES
A
B
C
D
E
F
G
Appartement à CHATEAUBOURG
Appartement à CHATEAUBOURG
Appartement à CHATEAUBOURG
Appartement à CHATEAUBOURG
Appartement à CHATEAUBOURG
Appartement à CHATEAUBOURG
Appartement à CHATEAUBOURG
Appartement à CHATEAUBOURG
Appartement à CHATEAUBOURG
Géorisques

Les informations sur les risques auxquels ce bien est exposé sont disponibles sur le site Géorisques : www.georisques.gouv.fr

Ce site est protégé par hCaptcha Politique de confidentialité et Conditions d’utilisation s’appliquent.

En poursuivant votre navigation sans modifier vos paramètres, vous acceptez l'utilisation de cookies susceptibles de réaliser des statistiques de visite. Cliquez ici pour plus d'informations