Terrain 677 m² à Sarras

— Sarras 07370 —
n.c. €
677 m²

À vendre : Terrain constructible de 677 m² – Viabilisé en eau

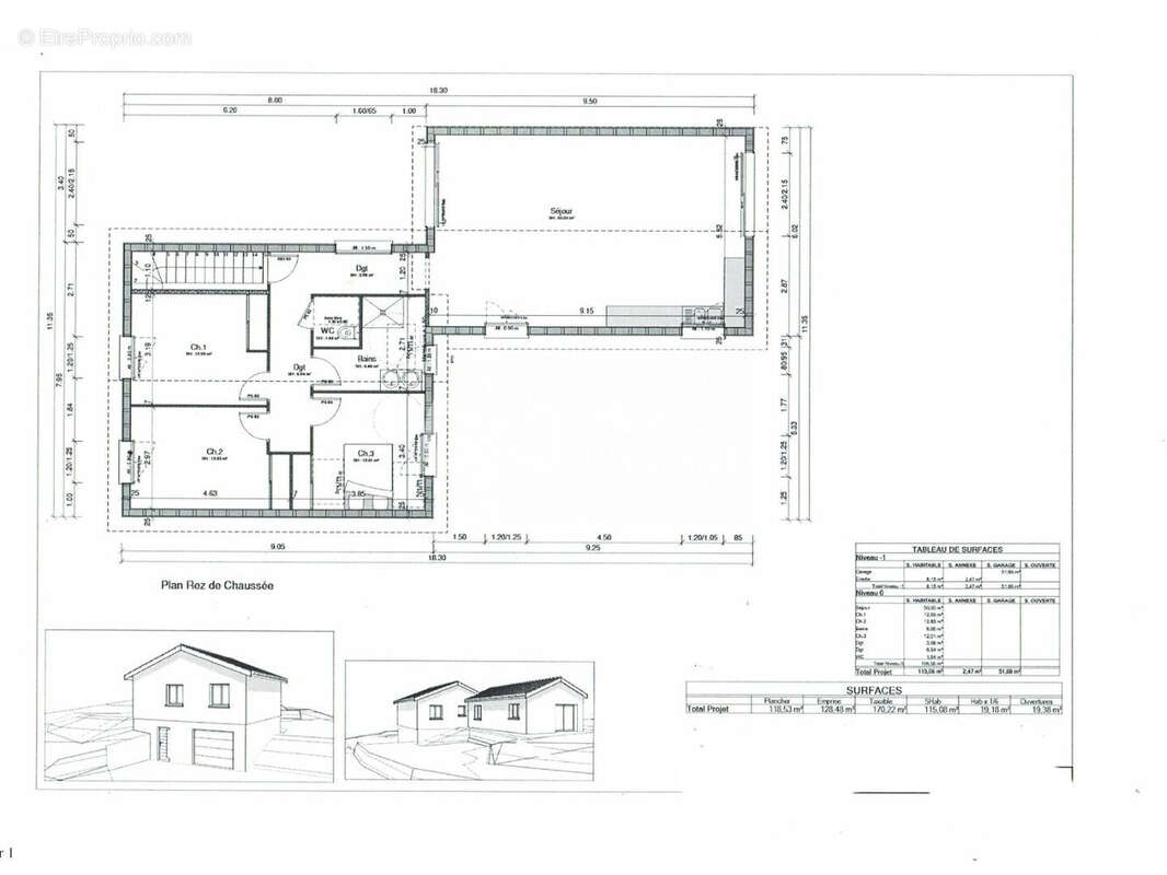
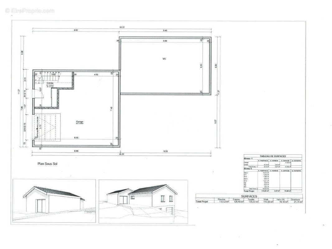
Une idée de plan d'une construction de maison possible sur ce terrain est disponible en photo.

Découvrez ce terrain de 677 m², idéalement situé dans un environnement calme et agréable. Entièrement constructible.

Le terrain est déjà viabilisé en eau.
Les autres réseaux (électricité, télécom, assainissement, etc.) se trouvent à proximité.

Atouts du terrain :

•Superficie : 677 m²
•Viabilisé en eau
•Proximité des commodités
•Libre constructeur


Cette annonce a été rédigée sous la responsabilité éditoriale de Océane Torgue, agissant sous le statut d'agent commercial immatriculée au RSAC de Aubenas sous le numéro 933 087 868.

Les informations sur les risques auxquels ce bien est exposé sont disponibles sur le site Géorisques : www.georisques.gouv.fr

Les informations sur les risques auxquels ce bien est exposé sont disponibles sur le site Géorisques : georisques.gouv.fr.

Votre conseiller Castel immobilier Agnin : Océane Torgue
Agent commercial (Entreprise individuelle).
Les informations sur les risques auxquels ce bien est exposé sont disponibles sur le site Géorisques : www.georisques.gouv.fr
Voir plus

Référence: VT2703
Honoraires à la charge du vendeur.
Barème des honoraires
Terrain à SARRAS
Terrain à SARRAS
Terrain à SARRAS
Terrain à SARRAS
Terrain à SARRAS
Géorisques

Les informations sur les risques auxquels ce bien est exposé sont disponibles sur le site Géorisques : www.georisques.gouv.fr

Ce site est protégé par hCaptcha Politique de confidentialité et Conditions d’utilisation s’appliquent.

En poursuivant votre navigation sans modifier vos paramètres, vous acceptez l'utilisation de cookies susceptibles de réaliser des statistiques de visite. Cliquez ici pour plus d'informations