Appartement 55 m² à Sainte-Suzanne

— Sainte-Suzanne 97441 —
262 000 €
55 m²
3 pièces

L'OPTIMISATION FISCALE À L'ÉTAT PUR : VOTRE PATRIMOINE À QUARTIER FRANÇAIS

Saisissez une opportunité rare d'allier performance financière et développement patrimonial au sein d'une nouvelle résidence intimiste située à Sainte-Suzanne. Idéalement implanté dans le secteur dynamique de Quartier Français, ce programme à taille humaine se déploie sur seulement trois niveaux et propose des typologies variées allant du T1 au T4 pour répondre à toutes les demandes locatives.

Cette réalisation a été spécifiquement conçue pour répondre aux exigences des sociétés soumises à l'Impôt sur les Sociétés (IS) souhaitant activer le levier puissant du Crédit d'Impôt Outre-mer. En investissant dans cet actif immobilier neuf, votre structure bénéficie d'un avantage fiscal immédiat de 35% au titre de l'article 244 quater W du CGI. Au-delà de l'effacement de l'impôt, ce dispositif permet de générer une rentabilité nette remarquable, comprise entre 7,3% et 8,7%, tout en profitant des mécanismes d'amortissement comptable pour optimiser vos bilans futurs.

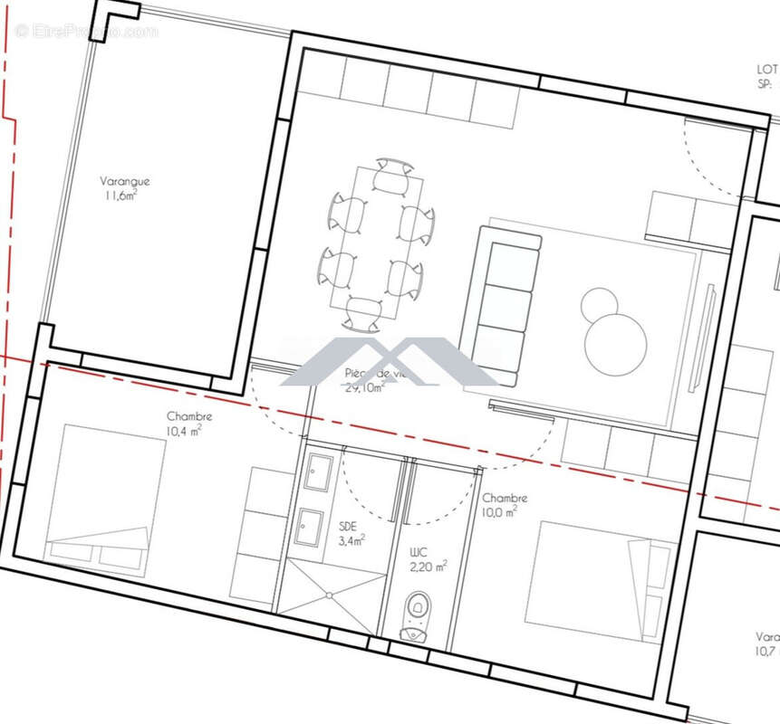
Au 1er étage de cette résidence de standing, sans ascenceur, ce T3 de 55m² se compose d'un séjour/cuisine de 25m², de 2 chambres de 10m², d'un wc independant de 2m², d'une salle de bain de 4m², d'une varangue de 13m² et de 2 places de stationnements sécurisées. Également, la résidence comprendra 8 places de parking visiteurs.

La localisation stratégique à Quartier Français garantit une proximité immédiate avec les pôles d'activité et les commodités, assurant ainsi la pérennité de votre investissement et une vacance locative maîtrisée. Que vous visiez la liquidité d'un studio ou la valorisation à long terme d'un grand appartement familial, chaque lot bénéficie de prestations modernes conformes aux dernières normes environnementales.

Faites de votre fiscalité un moteur de croissance en transformant votre impôt en un actif tangible et hautement rentable au coeur de Sainte-Suzanne. Contactez-nous dès aujourd'hui pour obtenir une simulation personnalisée et découvrir les plans de votre futur investissement.

Honoraires TTC charge vendeur Mandat n° 13 568 Réseau MAXImmo -
Plus d'informations et consultation de nos tarifs sur www.maximmo.re .
Les informations sur les risques auxquels ce bien est exposé sont disponibles sur le site Géorisques : www.georisques.gouv.fr'

Honoraires à la charge du vendeur. Non soumis au DPE. Les informations sur les risques auxquels ce bien est exposé sont disponibles sur le site Géorisques : georisques.gouv.fr.

Votre conseiller MAXImmo : Sébastien GRONDIN
Agent commercial (Entreprise individuelle)
RSAC 951217710
Voir plus

Référence: 13568 974-167SG-MAXIMMO
Honoraires à la charge du vendeur.
Barème des honoraires
Appartement à SAINTE-SUZANNE
Appartement à SAINTE-SUZANNE
Appartement à SAINTE-SUZANNE
Appartement à SAINTE-SUZANNE
Géorisques

Les informations sur les risques auxquels ce bien est exposé sont disponibles sur le site Géorisques : www.georisques.gouv.fr

Ce site est protégé par hCaptcha Politique de confidentialité et Conditions d’utilisation s’appliquent.