Bénéficiez des services de nos partenaires locaux soigneusement sélectionnés
pour vous accompagner dans votre parcours d'achat immobilier

Voir tous les partenaires locaux

Loft lumineux et contemporain, à deux pas du Château de Versailles

— Versailles 78000 —
980 000 €
104 m²
4 pièces

Nos partenaires locaux
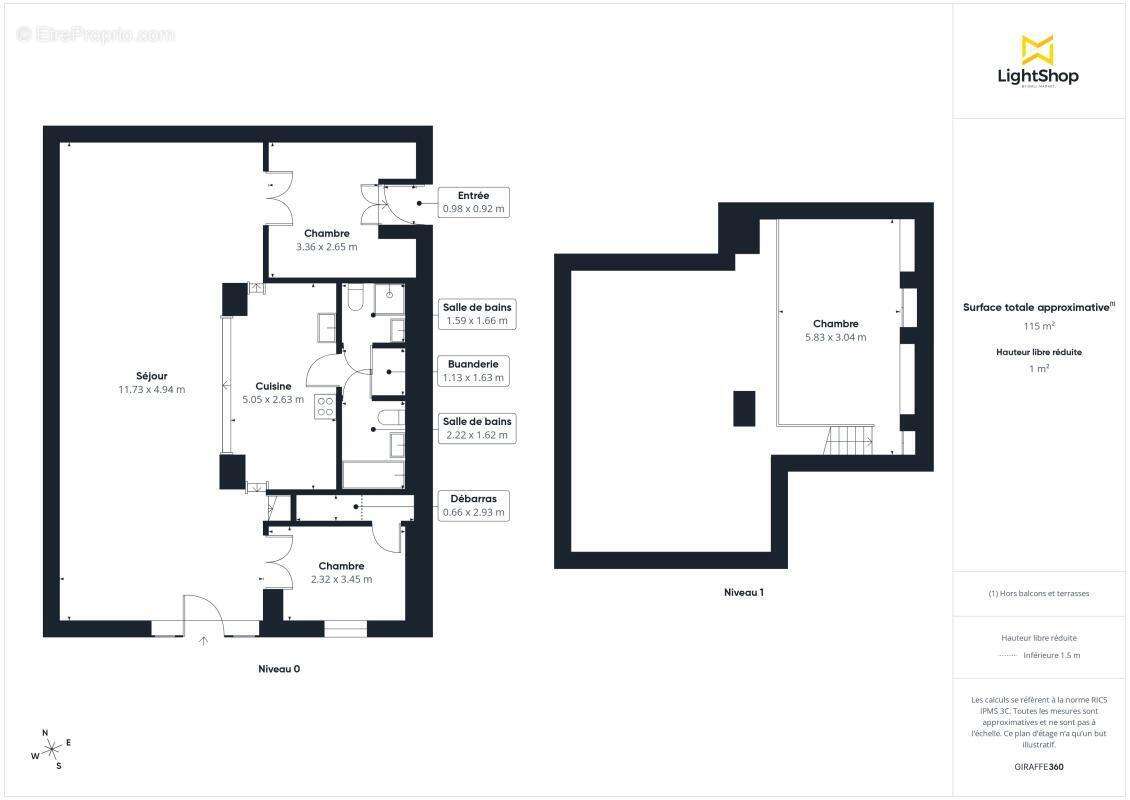
Hosman vous propose à la vente ce loft unique en rez-de-chaussée d'une superficie de 114 m² (105 m² Carrez), situé rue Hardy à Versailles. Ce bien allie espace, luminosité et cadre calme grâce à sa cour intérieure, à seulement quelques pas du Château et de la cathédrale.

Planifiez facilement votre visite en choisissant le créneau qui vous convient depuis le site d'Hosman.

Ce loft bénéficie d'un plan optimisé et se compose :
- d'une vaste pièce de vie lumineuse avec belle hauteur sous plafond de 54m2
- d'une cuisine ouverte équipée de 12m2,
- de deux chambres de respectivement 10m2 et 7m2,
- d'une mezzanine pouvant faire office de troisième chambre, bureau ou espace détente de 13m2,
- d'une salle de bains de 3m2 et d'une salle de d'eau de 2m2,
- d'un espace buanderie et de toilettes séparées.

Une cour intérieure calme complète ce bien.

Le chauffage et l'eau chaude sont assurés par un système individuel électrique.

Le bien est idéalement situé dans le quartier Saint-Louis : central, commerçant et touristique, parfaitement desservi par les transports (RER et trains à 10 minutes à pied).
À proximité directe des carrés Saint-Louis, l'appartement est au coeur de l'écosystème versaillais.

Le bien est soumis au statut de copropriété.
Taxe foncière : 1776€ par an.

Planifiez facilement votre visite en choisissant le créneau qui vous convient depuis le site d'Hosman.

Hosman s'efforce de réinventer l'agence immobilière en offrant un service innovant et transparent aux acheteurs et aux vendeurs. Nos frais d'agence sont fixes à 22 900€ euros à la charge du vendeur.
Voir plus

Référence: e1615a
Bien en copropriété. Nombre de lots : 26.
Honoraires à la charge du vendeur.
DPE
A
B
C
D
E
F
G
GES
A
B
C
D
E
F
G
Appartement à VERSAILLES
Appartement à VERSAILLES
Appartement à VERSAILLES
Appartement à VERSAILLES
Appartement à VERSAILLES
Appartement à VERSAILLES
Appartement à VERSAILLES
Appartement à VERSAILLES
Appartement à VERSAILLES
Appartement à VERSAILLES
Appartement à VERSAILLES
Géorisques

Les informations sur les risques auxquels ce bien est exposé sont disponibles sur le site Géorisques : www.georisques.gouv.fr

Ce site est protégé par hCaptcha Politique de confidentialité et Conditions d’utilisation s’appliquent.

En poursuivant votre navigation sans modifier vos paramètres, vous acceptez l'utilisation de cookies susceptibles de réaliser des statistiques de visite. Cliquez ici pour plus d'informations