Bénéficiez des services de nos partenaires locaux soigneusement sélectionnés
pour vous accompagner dans votre parcours d'achat immobilier

Spacieux Duplex - 3 Pièces - Travaux à Prévoir - Cœur de Menton

— Menton 06500 —
430 000 €
102 m²
3 pièces
balcon/terrasse

Nos partenaires locaux
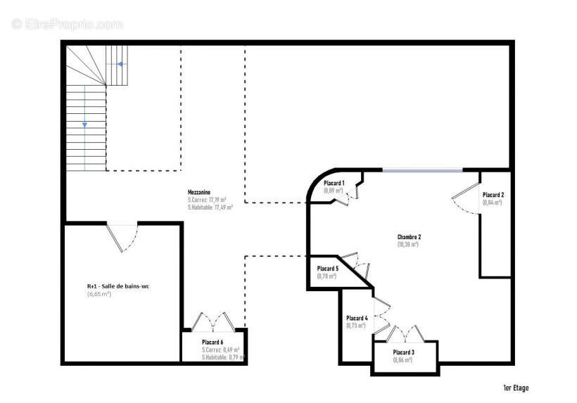
Situé au cœur de Menton, dans un ancien palace Belle Époque classé, dans un environnement privilégié et au calme absolu, ce superbe appartement en cours de rafraîchissement en duplex de 116,29 m2 bénéficie d’un emplacement idéal à proximité immédiate des commerces et des plages. Ce bien rare offre une parfaite intimité en plein centre-ville.
D’une surface habitable généreuse, l’appartement se déploie sur deux niveaux et offre de très beaux volumes baignés de lumière grâce à son exposition sud et ses larges ouvertures.
Le niveau principal accueille un spacieux séjour de plus de 35m2, une cuisine indépendante, ainsi qu’une première chambre confortable.
À l’étage supérieur, l’espace nuit se compose d’une seconde chambre, d’un espace aménageable en bureau et d’une salle de bains complète. De nombreux rangements optimisent chaque espace de vie.
Le bien est complété par une grande cave en sous-sol de 3,50m de hauteur et de 1,87m de largeur sur deux niveaux.
Copropriété parfaitement entretenue, dispose d'un accès sécurisé et d'un jardin privatif à la copropriété.
A VISITER SANS TARDER
Voir plus

Référence: 1594
Bien en copropriété. Nombre de lots : 183. Charges de copropriété : 1600 €.
Honoraires d'agence de 6% à la charge de l'acquéreur
Barème des honoraires
DPE
A
B
C
D
E
F
G
GES
A
B
C
D
E
F
G
Appartement à MENTON
Appartement à MENTON
Appartement à MENTON
Appartement à MENTON
Appartement à MENTON
Appartement à MENTON
Appartement à MENTON
Appartement à MENTON
Appartement à MENTON
Géorisques

Les informations sur les risques auxquels ce bien est exposé sont disponibles sur le site Géorisques : www.georisques.gouv.fr

Ce site est protégé par hCaptcha Politique de confidentialité et Conditions d’utilisation s’appliquent.

En poursuivant votre navigation sans modifier vos paramètres, vous acceptez l'utilisation de cookies susceptibles de réaliser des statistiques de visite. Cliquez ici pour plus d'informations