Bénéficiez des services de nos partenaires locaux soigneusement sélectionnés
pour vous accompagner dans votre parcours d'achat immobilier

Perpignan centre: maison 3 pieces - parking

— Perpignan 66000 —
250 000 €
69 m²
3 pièces
parking

Nos partenaires locaux
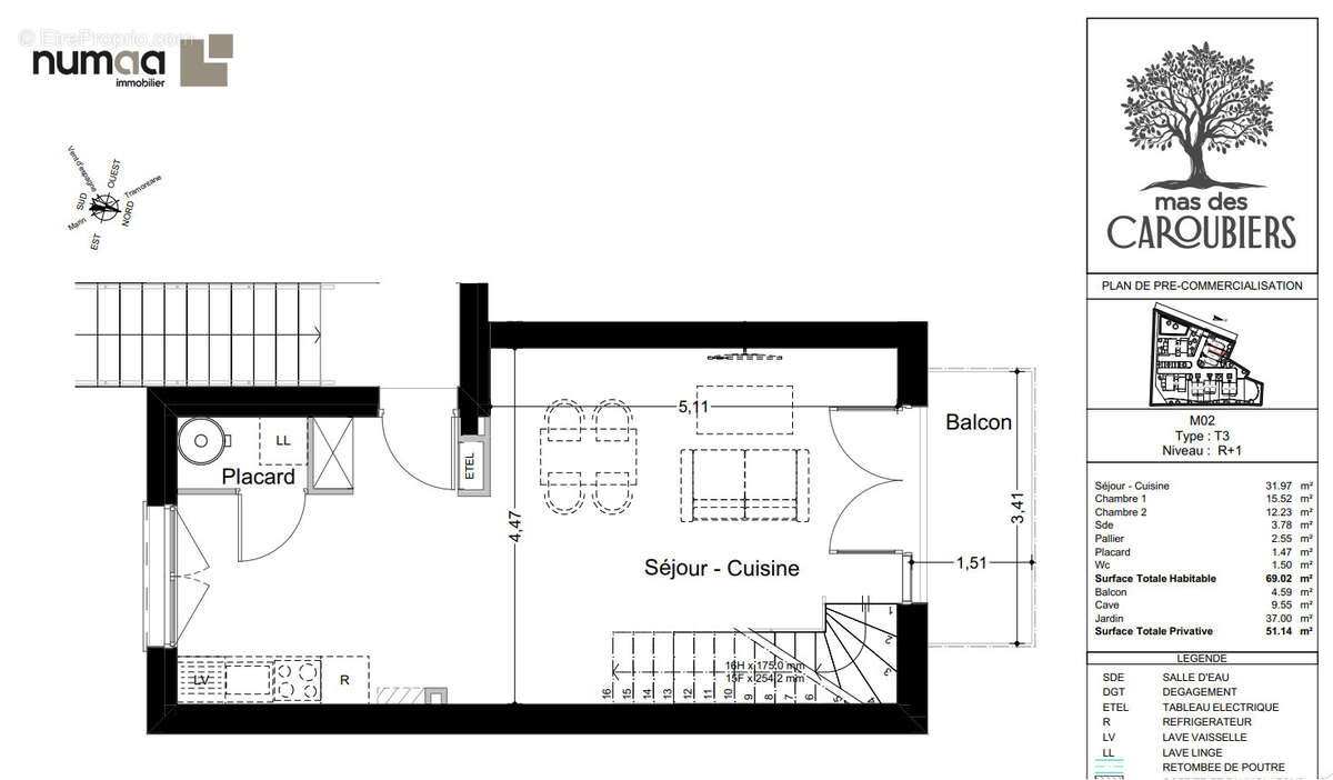
PERPIGNAN CENTRE :  L'agence Laville Immo vous présente un concept de vie unique : une maison neuve en 3 pièces (R+2),  pour allier légèreté architecturale et confort quotidien. Livraison prévue pour le 1er trimestre 2027 ! 
 Une maison 'sur pilotis' à l'agencement optimisé :


Rez-de-chaussée : Un espace pratique avec cellier, deux emplacements de parking couverts et un jardin privé de 37 m2 pour vos moments de détente en plein air.


1er Étage : Un vaste salon-séjour de plus de 30 m2 avec cuisine américaine semi-équipée, le tout ouvrant sur un balcon baigné de lumière. 


2ème Étage : L'espace nuit avec deux chambres équipées de placards, une salle d’eau aménagée et un WC individuel.


Surface totale : 69 m2 de pur confort moderne.


Prestation de qualité : Volets roulants électriques, double vitrage, chauffage individuel et carrelage grand format. 
Des avantages financiers :  C’est le moment de devenir propriétaire grâce à des conditions rares sur le marché :


TVA réduite à 5,5 % (au lieu de 20 %) ! 


Éligible au Prêt à Taux Zéro (PTZ) pour financer une partie de votre projet.


Frais de notaire réduits.


Située dans une résidence sécurisée, cette maison incarne l'avenir de l'habitat urbain : calme, contemporain et accessible. Contactez-nous pour une étude personnalisée :  [Coordonnées masquées] / [Coordonnées masquées] Bien soumis au statut de la copropriété. Honoraires à la charge du vendeur.  Informations sur les risques disponibles sur : www.georisques.gouv.fr
Voir plus

Référence: 0875
Honoraires à la charge du vendeur.
Barème des honoraires
DPE
A
B
C
D
E
F
G
GES
A
B
C
D
E
F
G
Maison à PERPIGNAN
Maison à PERPIGNAN
Maison à PERPIGNAN
Maison à PERPIGNAN
Maison à PERPIGNAN
Géorisques

Les informations sur les risques auxquels ce bien est exposé sont disponibles sur le site Géorisques : www.georisques.gouv.fr

Ce site est protégé par hCaptcha Politique de confidentialité et Conditions d’utilisation s’appliquent.

En poursuivant votre navigation sans modifier vos paramètres, vous acceptez l'utilisation de cookies susceptibles de réaliser des statistiques de visite. Cliquez ici pour plus d'informations